19-2083 HOUSE PLAN – Architectural House Blueprint with CAD Designs & Floor Plans
Discover this beautifully designed 2-story house plan featuring 4 bedrooms, vaulted ceilings, bonus room, CAD blueprints, and stunning transitional architecture.
Architectural Home Blueprint with CAD Designs & Floor Plans
Discover this beautifully designed 2-story home plan featuring 4 bedrooms, vaulted ceilings, bonus room, CAD blueprints, and stunning transitional architecture.
This Transitional house plan offers a perfect mix of comfort and functionality. Designed for modern living, it delivers timeless charm and smart space planning.
Key Features of the Home Plan
Living Areas – Heated & Unheated
- Heated area: 4,097 sq. ft. over two stories.
- Unheated extras: Covered front and rear porches, 3-car garage bays, and attic space.
Bedrooms & Bathrooms
- 4 spacious bedrooms including a luxurious first-floor Owner Suite with a walk-in closet.
- 3 full bathrooms with strategic placement, including a Jack and Jill upstairs.
Interior Highlights
- Vaulted ceilings enhance openness in the great room and Owner Suite.
- Open floor plan connects the kitchen, family, and dining areas seamlessly. View open layouts.
- Chef’s kitchen with island, walk-in pantry, and breakfast nook.
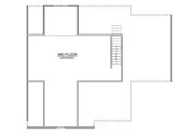
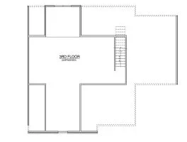
- Bonus room upstairs for media, leisure, or flexible use.
- Fireplace adds comfort and charm. Browse fireplace plans.
Garage & Storage Details
- Garage Bays: 3-car garage with side entry for aesthetic curb appeal.
- Garage Type: Attached, traditional front-load orientation.
- Storage: Large mudroom, attic space, and laundry room cabinetry.
Outdoor Living Features
- Covered front porch and rear porch for relaxing and entertaining outdoors.
- Brick and shingle exterior detailing ensures timeless durability and style.
Architectural Style: Transitional
This design blends timeless materials and thoughtful details—perfect for families who value character and efficiency in one package. Learn more about the Transitional style or explore its roots on ArchDaily.
Bonus Features
- Private office or study for remote work and productivity.
- Spacious foyer with dramatic entry for a grand first impression.
- Second-floor bonus room ideal for games, fitness, or guests.
Included Benefits with Every Plan
- CAD + PDF Files: Easily editable, printable, and ready to build.
- Unlimited Build License: Build once—or 100 times—with no extra fees.
- Free Foundation Changes: Swap between slab, crawlspace, or basement. Learn more.
- Structural Engineering Included: Code-compliant and professionally stamped. See why it matters.
- Lower Modification Costs: Up to 50% less than competitors. Request changes here.
- View Before You Buy: See every sheet in advance.
Similar Collections You Might Love
- House Plans with Kitchen Islands
- Plans with First Floor Owner Suites
- Covered Back Porch House Plans
- House Plans with Bonus Rooms
- House Plans with Walk-in Closets
Frequently Asked Questions
What’s included with this house plan? All plans come with editable CAD files, printable PDFs, unlimited-build rights, structural engineering, and free foundation changes.
Can I customize the layout? Yes! We offer fast and affordable modifications. Get a quote here.
Is the bonus room finished? It’s ready to be used as-is or finished to your preference during construction.
How many garage bays are included? This plan features a 3-car garage with side entry for enhanced curb appeal.
Can I see all the blueprint pages before I buy? Yes. Preview every sheet before you buy.
Start Building Your Dream Home Today
Have questions or want to personalize your plan? Contact our expert team at support@myhomefloorplans.com or fill out our form.
Your future house starts with a great plan—customize it and build with confidence!
Original price was: $2,470.56.$1,254.99Current price is: $1,254.99.
999 in stock
* Please verify all details with the actual plan, as the plan takes precedence over the information shown below.
| Width | 81'-0" |
|---|---|
| Depth | 56'-8" |
| Htd SF | |
| Unhtd SF | |
| Bedrooms | |
| Bathrooms | |
| # of Floors | |
| # Garage Bays | |
| Architectural Styles | |
| Indoor Features | Bonus Room, Downstairs Laundry Room, Family Room, Fireplace, Foyer, Great Room, Office/Study |
| Outdoor Features | |
| Bed and Bath Features | Bedrooms on First Floor, Jack and Jill Bathroom, Owner's Suite on First Floor, Split Bedrooms, Walk-in Closet |
| Kitchen Features | |
| Garage Features | |
| Ceiling Features | |
| Structure Type | |
| Exterior Material |
No reviews yet.
9 FT+ Ceilings | After Build Photos | Bedrooms on First and Second Floors | Bonus Rooms | Breakfast Nook | Classic Suburban | Covered Front Porch | Covered Rear Porches | Downstairs Laundry Room | Family Room | Fireplaces | Fireplaces | First-Floor Bedrooms | Foyer | Great Room | Jack and Jill | Kitchen Island | Large House Plans | Office/Study Designs | Oversized Designs | Owner’s Suite on the First Floor | Side Entry Garage | Split Bedroom | Transitional | Vaulted Ceiling | Walk-in Closet | Walk-in Pantry
19-2083 HOUSE PLAN – Architectural House Blueprint with CAD Designs & Floor Plans
- BOTH a PDF and CAD file (sent to the email provided/a copy of the downloadable files will be in your account here)
- PDF – Easily printable at any local print shop
- CAD Files – Delivered in AutoCAD format. Required for structural engineering and very helpful for modifications.
- Structural Engineering – Included with every plan unless not shown in the product images. Very helpful and reduces engineering time dramatically for any state. *All plans must be approved by engineer licensed in state of build*
Disclaimer
Verify dimensions, square footage, and description against product images before purchase. Currently, most attributes were extracted with AI and have not been manually reviewed.
My Home Floor Plans, Inc. does not assume liability for any deviations in the plans. All information must be confirmed by your contractor prior to construction. Dimensions govern over scale.



















































