20-1500 HOUSE PLAN – Modern Craftsman House Plan with Spacious Layout and CAD Blueprint
This stunning house plan offers 4 bedrooms, 5 baths, 2 floors, and a 2-car garage. Features include vaulted ceilings, open floor plan, CAD blueprints, and more.
Modern Craftsman Home Plan with Spacious Layout and CAD Blueprint
This stunning home plan offers 4 bedrooms, 5 baths, 2 floors, and a 2-car garage. Features include vaulted ceilings, open floor plan, CAD blueprints, and more.
This Modern Craftsman house plan offers a perfect mix of comfort and functionality. Designed for modern living, it delivers timeless charm and smart space planning.
Key Features of the Home Plan
Living Areas – Heated & Unheated
- Heated area: Approximately 4,000+ sq. ft. across two full stories.
- Unheated extras: Covered front porch, screened porch, open deck, and garage space.
Bedrooms & Bathrooms
- 4 spacious bedrooms including a luxurious Owner Suite on the first floor with Jack-and-Jill bathroom access.
- 5 total bathrooms, offering both convenience and privacy for each family member and guest.
Interior Highlights
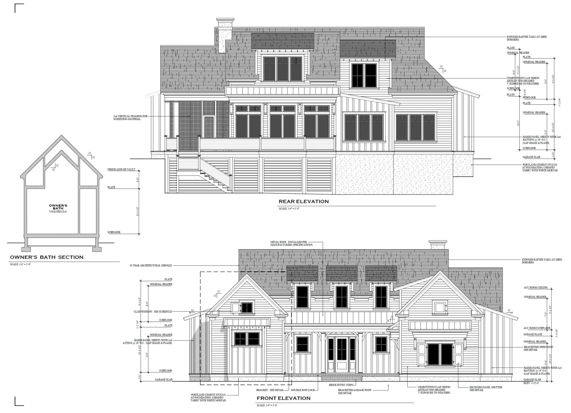
- Vaulted ceilings create a sense of grandeur and openness.
- Open floor plan links the kitchen, dining, and living areas seamlessly. View open layouts.
- Kitchen island, breakfast nook, and a walk-in pantry deliver culinary excellence and daily function.
- Butler’s pantry for added organization and prep space.
- Dedicated mudroom and office/study for daily tasks and focused work time.
- Oversized laundry room (15×15+) with storage flexibility. Browse laundry room plans.
Garage & Storage Details
- Garage Bays: 2-car garage, ideal for family use or extra storage.
- Garage Type: Attached garage with convenient entry near mudroom.
- Storage: Ample attic storage, mudroom cubbies, and bonus closets throughout.
Outdoor Living Features
- Expansive covered front porch and a tranquil screened rear porch for bug-free relaxation.
- Open deck space perfect for grilling, lounging, or entertaining. Explore deck house plans.
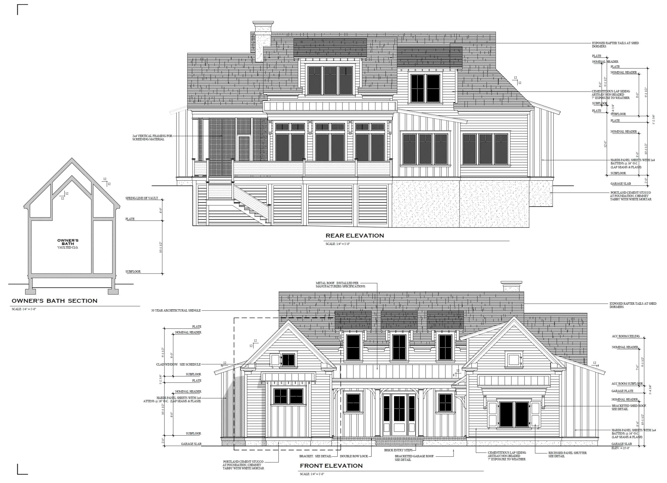
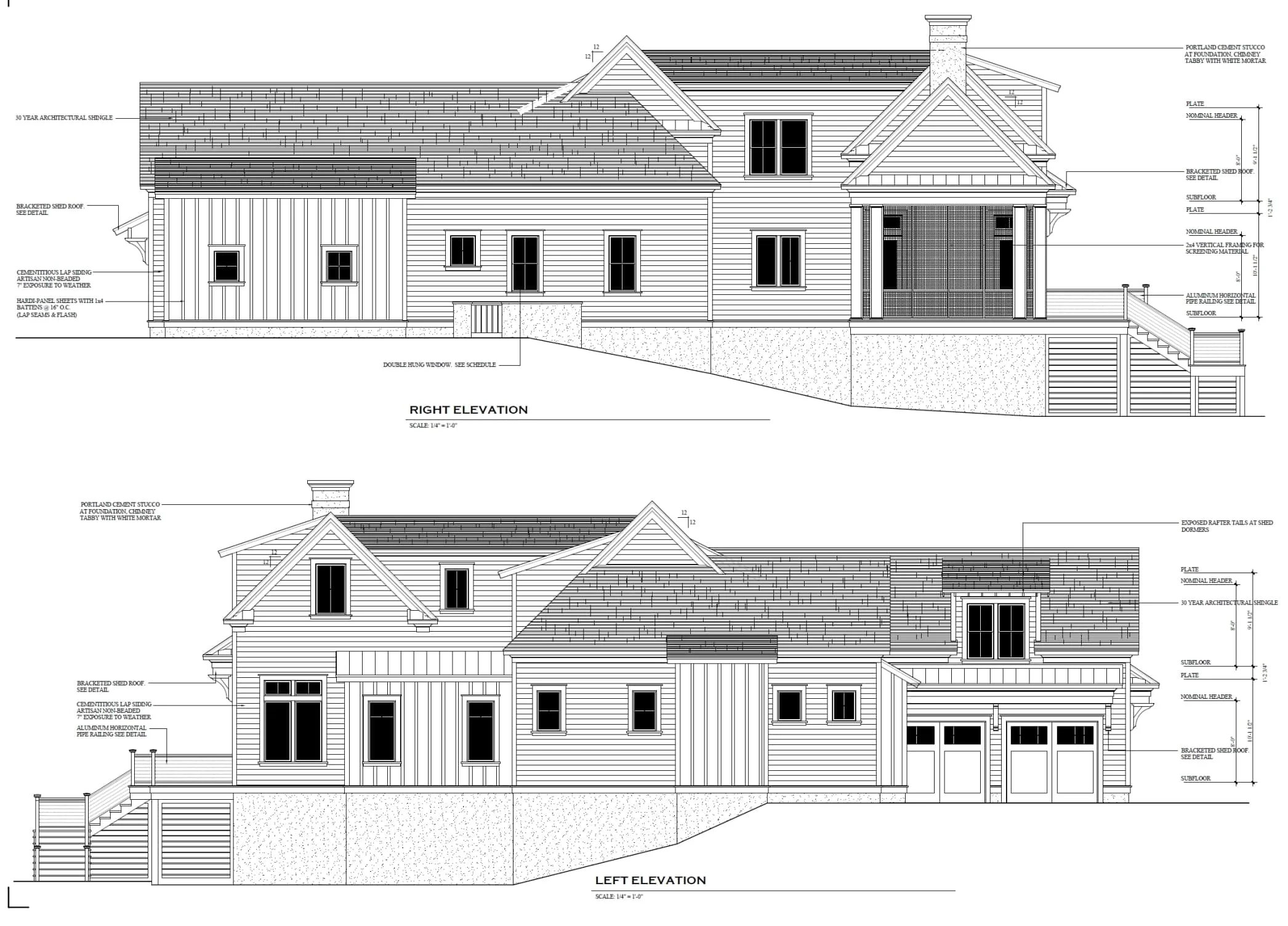
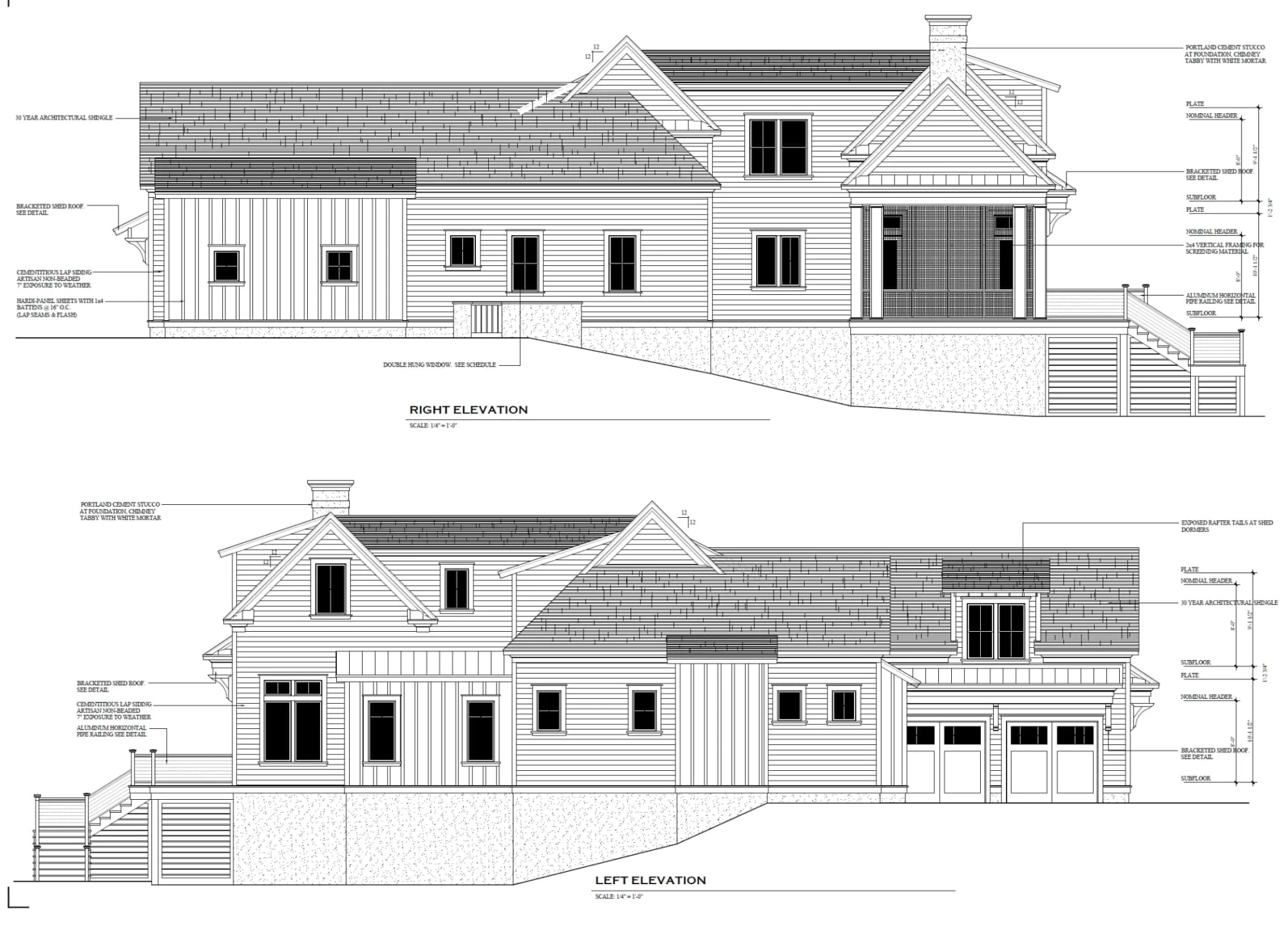
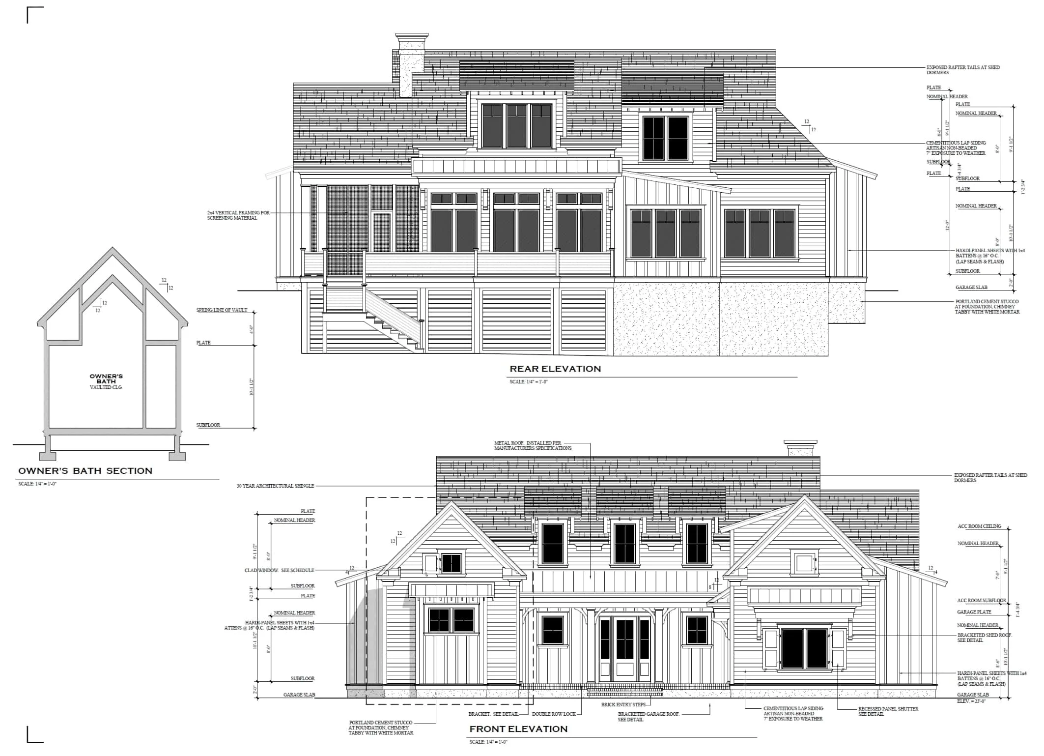
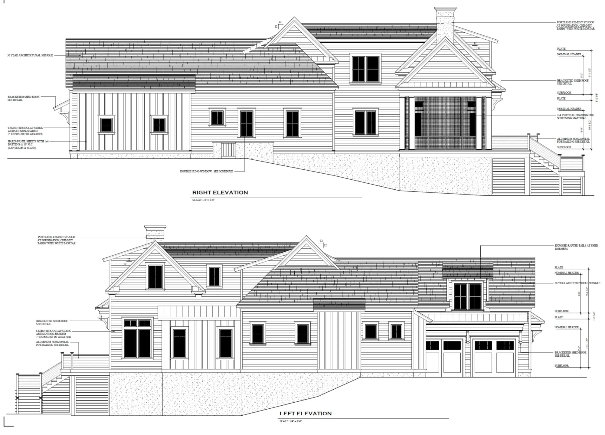
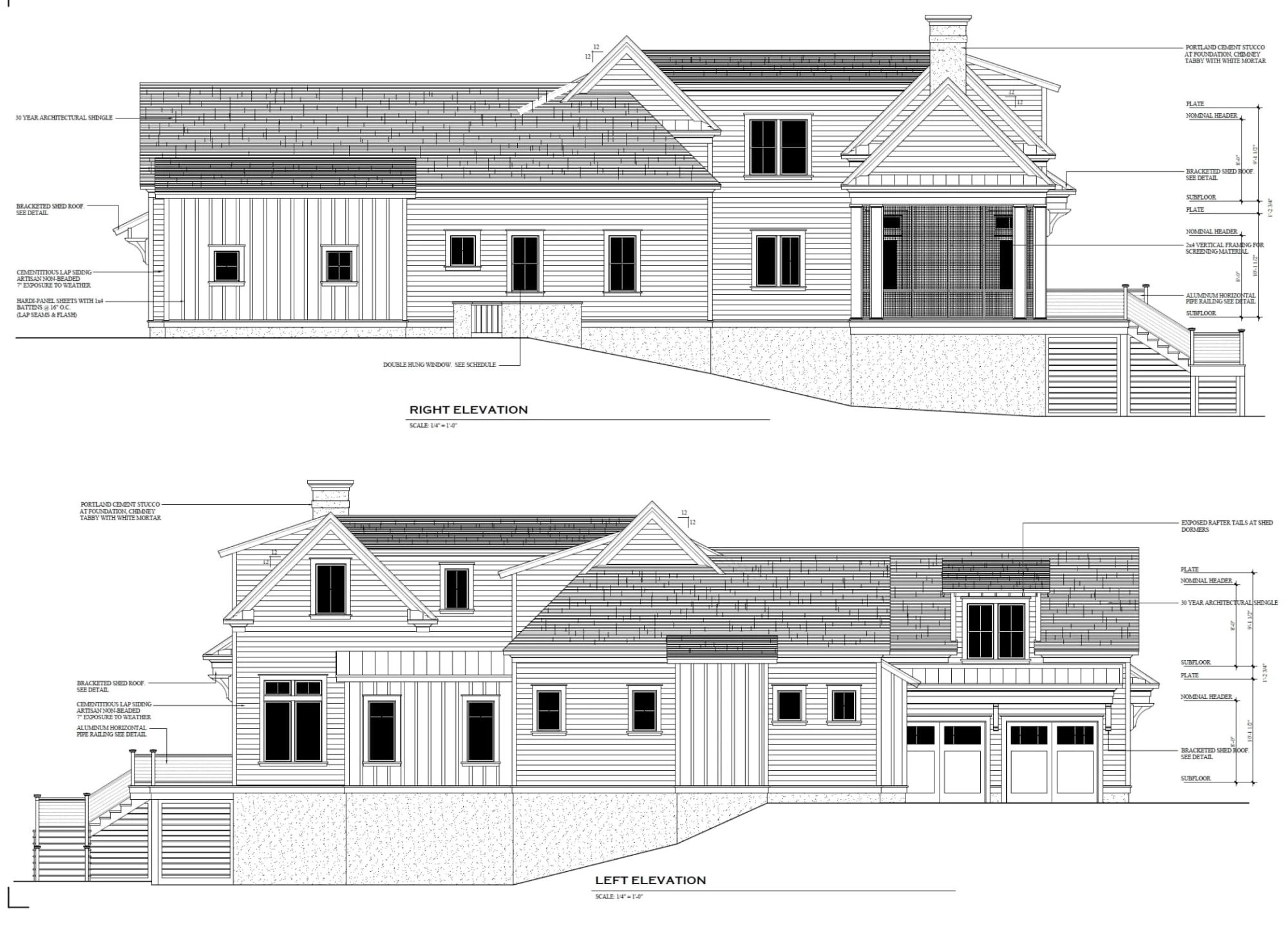
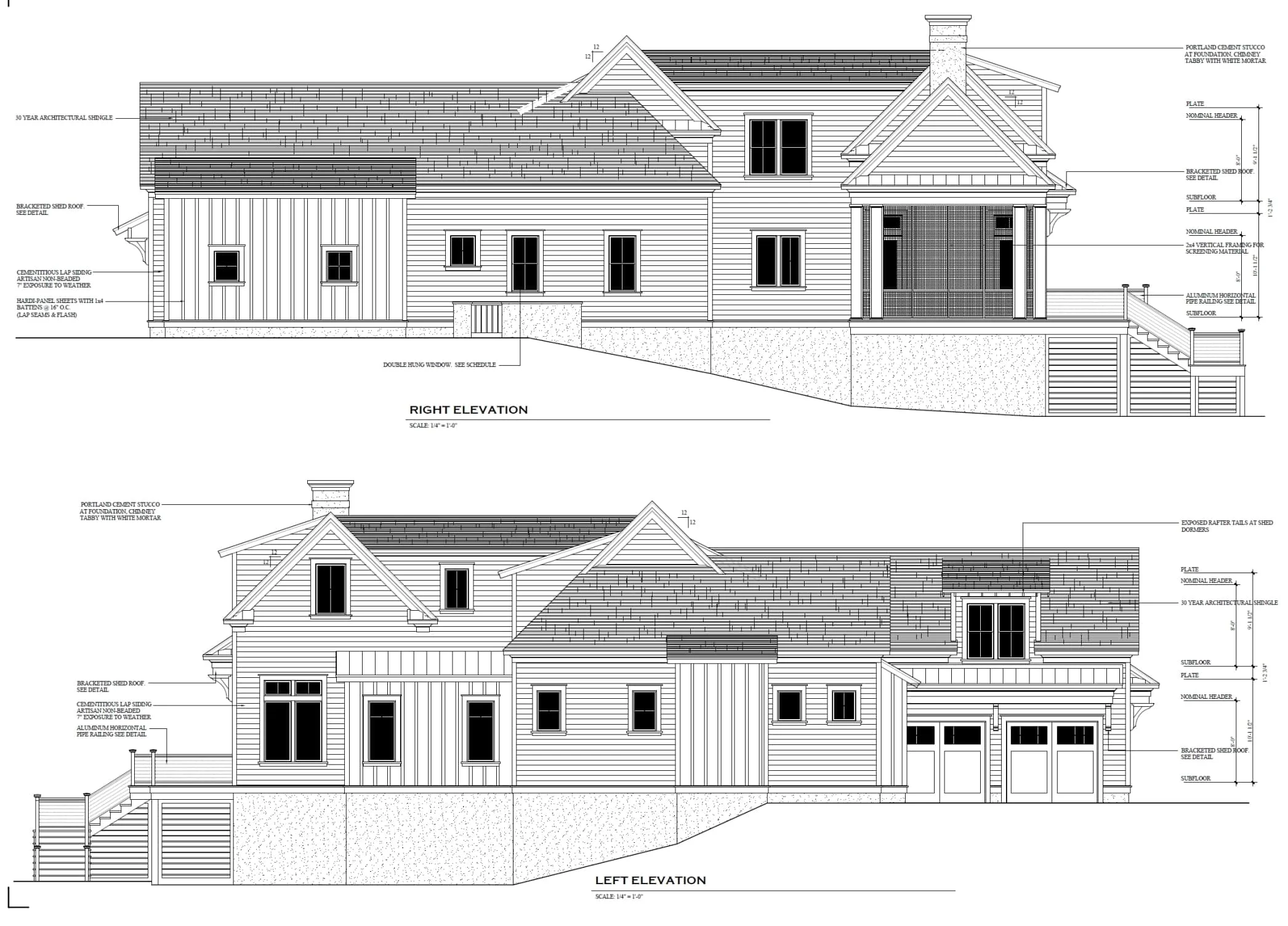
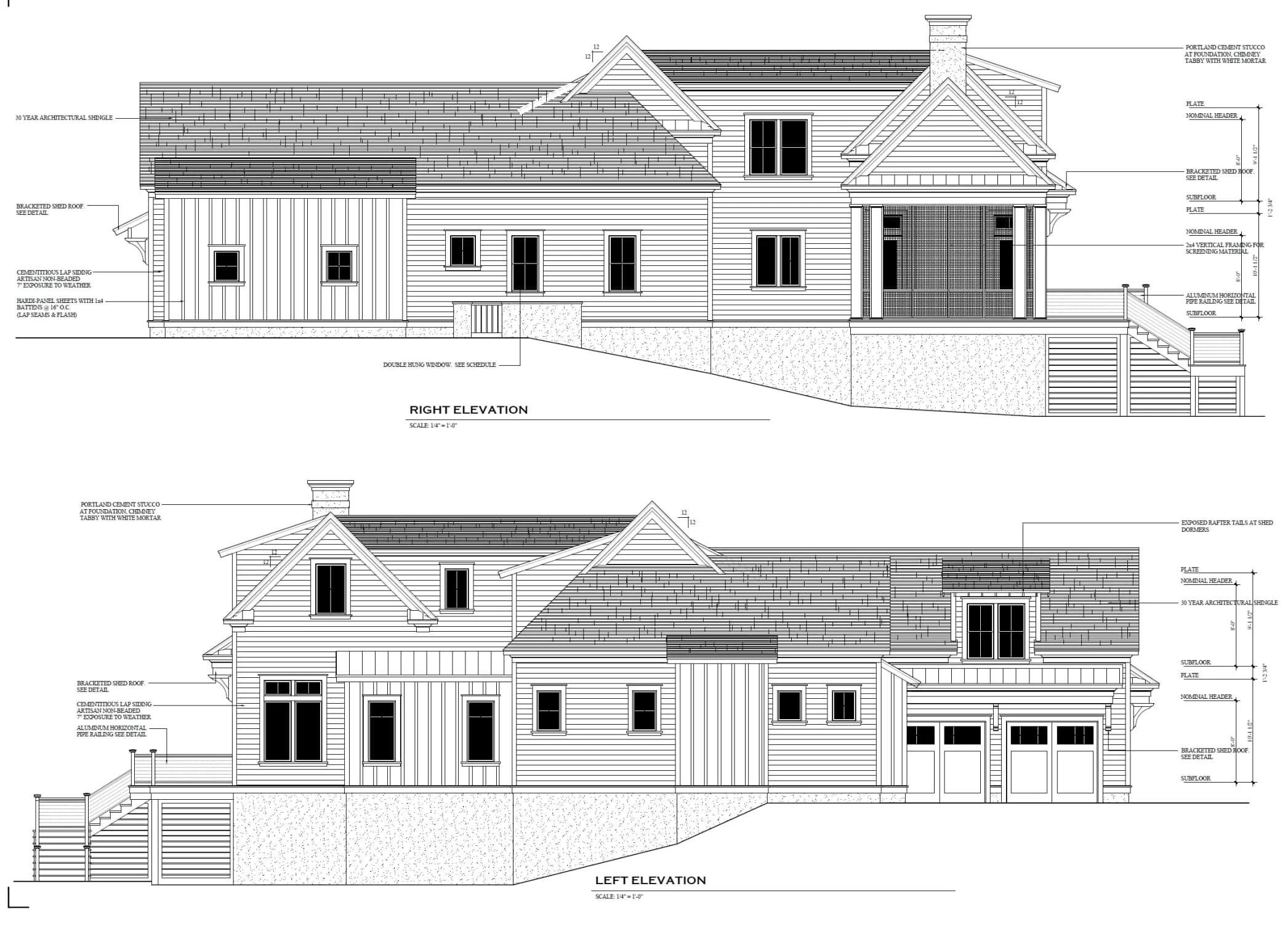
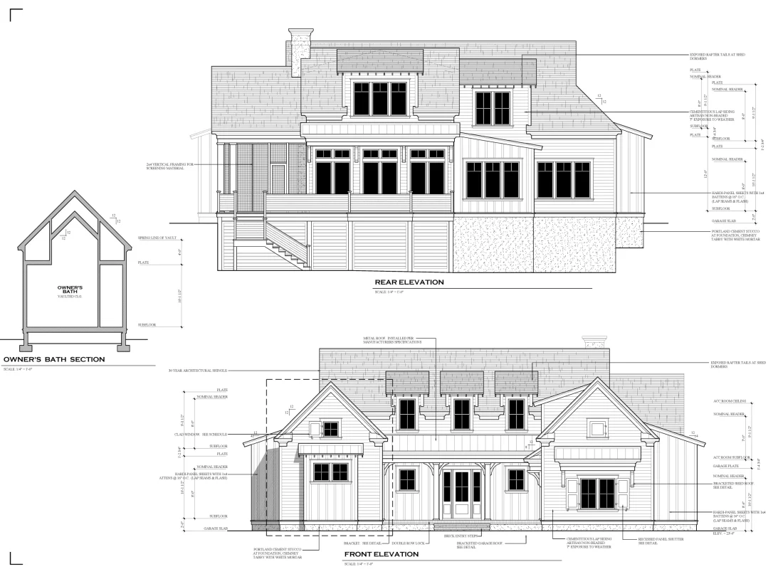
- Board & batten siding, brick, and stucco for a timeless Craftsman aesthetic.
Architectural Style: Modern Craftsman
This design blends durable materials and thoughtful architectural detail—perfect for families who want charm and function in one plan. Learn more about the Modern Craftsman style or explore its architectural roots at ArchDaily.
Bonus Features
- Flex space that can serve as a guest room, playroom, or gym.
- Breakfast nook for casual dining and daily convenience.
- Dual home offices for remote work flexibility.
Included Benefits with Every Plan
- CAD + PDF Files: Easily editable, printable, and ready for construction.
- Unlimited Build License: No extra fees—build again and again.
- Free Foundation Changes: Choose slab, crawlspace, or basement at no cost. Learn more.
- Structural Engineering Included: Professionally reviewed and code-compliant.
- Lower Modification Costs: Custom changes at up to 50% less than competitors.
- View Before You Buy: Preview every sheet in advance.
Similar Collections You Might Love
- Plans with Kitchen Islands
- First-Floor Bedroom House Plans
- Screened Porch House Plans
- House Plans with Fireplaces
- Modern Suburban House Plans
Frequently Asked Questions
What’s included with this house plan? Each purchase includes CAD files, printable PDFs, an unlimited build license, structural engineering support, and free foundation changes.
Can I request custom changes? Absolutely. We offer low-cost modifications to adapt the layout to your lifestyle. Get started here.
How many stories is this home? This is a 2-story house design with the Owner Suite located on the first floor.
Does this plan support outdoor entertaining? Yes! Between the open deck, screened porch, and covered front entry, you’ll have multiple outdoor spaces.
Is the laundry room oversized? Yes—this home features a laundry room over 15×15 ft, perfect for functionality and storage.
Start Building Your Dream Home Today
Have questions or want to personalize your plan? Contact our expert team at support@myhomefloorplans.com or fill out our contact form.
Your dream house begins with a flexible, high-quality blueprint. Let’s bring your vision to life!
Original price was: $3,370.56.$1,754.99Current price is: $1,754.99.
999 in stock
* Please verify all details with the actual plan, as the plan takes precedence over the information shown below.
| Width | 72'-0" |
|---|---|
| Depth | 95'-6" |
| Htd SF | |
| Unhtd SF | |
| Bedrooms | |
| Bathrooms | |
| # of Floors | |
| # Garage Bays | |
| Architectural Styles | |
| Indoor Features | Attic, Bonus Room, Family Room, Fireplace, Foyer, Great Room, Large Laundry Room, Mudroom, Office/Study, Open Floor Plan |
| Outdoor Features | |
| Bed and Bath Features | Bedrooms on First Floor, Bedrooms on Second Floor, Jack and Jill Bathroom, Owner's Suite on First Floor, Walk-in Closet |
| Kitchen Features | Breakfast Nook, Butler's Pantry, Kitchen Island, Walk-in Pantry |
| Garage Features | |
| Ceiling Features | |
| Structure Type | |
| Exterior Material |
Robert Avila – October 18, 2023
Porch depth felt short on paper; stretched it 2? in CAD and the change rippled through every sheet perfectly.
9 FT+ Ceilings | Attics | Bedrooms on First and Second Floors | Bonus Rooms | Breakfast Nook | Butler’s Pantry | Covered Front Porch | Covered Patio | Craftsman | Designer Favorite | Family Room | Fireplaces | Foyer | Front Entry | Great Room | Home Plans with Mudrooms | Jack and Jill | Kitchen Island | Large House Plans | Large Laundry Room | Modern Suburban Designs | Office/Study Designs | Open Deck Designs | Open Floor Plan Designs | Owner’s Suite on the First Floor | Screened Porches | Second Floor Bedroom | Side Entry Garage | Traditional | Vaulted Ceiling | Walk-in Closet | Walk-in Pantry | Workshop
20-1500 HOUSE PLAN – Modern Craftsman House Plan with Spacious Layout and CAD Blueprint
- BOTH a PDF and CAD file (sent to the email provided/a copy of the downloadable files will be in your account here)
- PDF – Easily printable at any local print shop
- CAD Files – Delivered in AutoCAD format. Required for structural engineering and very helpful for modifications.
- Structural Engineering – Included with every plan unless not shown in the product images. Very helpful and reduces engineering time dramatically for any state. *All plans must be approved by engineer licensed in state of build*
Disclaimer
Verify dimensions, square footage, and description against product images before purchase. Currently, most attributes were extracted with AI and have not been manually reviewed.
My Home Floor Plans, Inc. does not assume liability for any deviations in the plans. All information must be confirmed by your contractor prior to construction. Dimensions govern over scale.















