Plan 20-1989 – The Taylor Manor | Craftsman Farmhouse – 4-Bed, 3-Bath, 2,750 SF
Craftsman Farmhouse and Traditional Craftsman house plan with brick and board-and-batten exterior • 4 bed • 3 bath • 2,750 SF. Vaulted great room, covered porch, and bonus room. Includes CAD+PDF + unlimited build license.
Original price was: $2,518.99.$1,554.78Current price is: $1,554.78.
999 in stock
* Please verify all details with the actual plan, as the plan takes precedence over the information shown below.
| Architectural Styles | |
|---|---|
| Width | 76'-4" |
| Depth | 67'-4" |
| Htd SF | |
| Unhtd SF | |
| Bedrooms | |
| Bathrooms | |
| # of Floors | |
| # Garage Bays | |
| Indoor Features | |
| Outdoor Features | |
| Bed and Bath Features | Bedrooms on First Floor, Owner's Suite on First Floor, Split Bedrooms, Walk-in Closet |
| Kitchen Features | |
| Garage Features | |
| Condition | New |
| Ceiling Features | |
| Structure Type | |
| Exterior Material |
Megan Mueller – June 23, 2025
Structural notes reference common code tables, so local engineers only validate rather than redraftfast and economical.
10 FT+ Ceilings | 9 FT+ Ceilings | Affordable | Bedrooms on First and Second Floors | Bonus Rooms | Covered Front Porch | Covered Rear Porches | Craftsman | Eating Bar | Fireplaces | Foyer | Front Entry | Great Room | Home Plans with Mudrooms | Kitchen Island | Large House Plans | Owner’s Suite on the First Floor | Side Entry Garage | Split Bedroom | Top Selling | Traditional Farmhouse | Vaulted Ceiling | Walk-in Closet | Walk-in Pantry
Craftsman Farmhouse Plan with Brick and Board-and-Batten Exterior
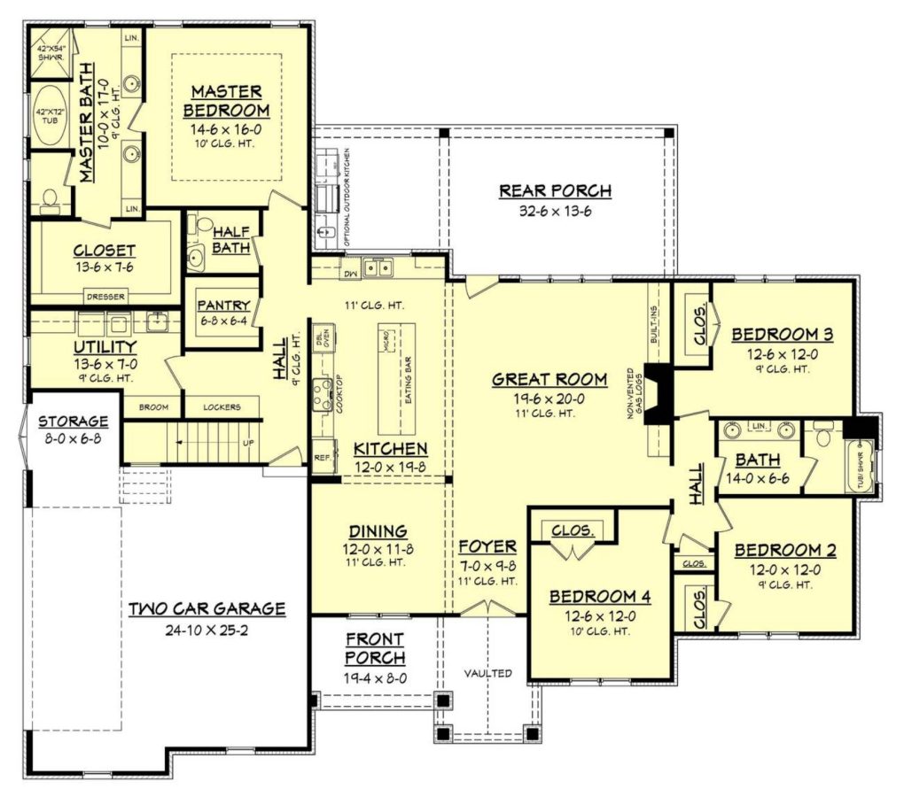
Experience this stunning Craftsman Farmhouse home plan featuring 2,750 heated sq. ft., 4 bedrooms, 3 bathrooms, and an inviting blend of rustic charm and modern comfort.
This Craftsman Farmhouse design merges warmth, symmetry, and timeless craftsmanship. Its combination of brick, board-and-batten siding, and timber trusses captures the essence of a refined country retreat while ensuring enduring beauty and performance.
Main Living Highlights
- Heated Space: 2,750 sq. ft. with an open floor plan and vaulted ceilings.
- Bedrooms: 4, including a luxurious owner’s suite with double vanities and soaking tub.
- Bathrooms: 3 full baths with detailed tilework and elegant fixtures.
Great Room & Kitchen Design
The great room features exposed beams and large windows bringing in abundant natural light. A central fireplace anchors the living area, creating a cozy heart of the home. The kitchen offers a walk-in pantry, expansive island, and access to a covered porch—ideal for entertaining indoors and out.
Outdoor Living
Enjoy two generous covered porches—one at the entrance framed by timber posts and another at the rear perfect for relaxation or outdoor dining. The board-and-batten and brick façade deliver durability with Craftsman authenticity.
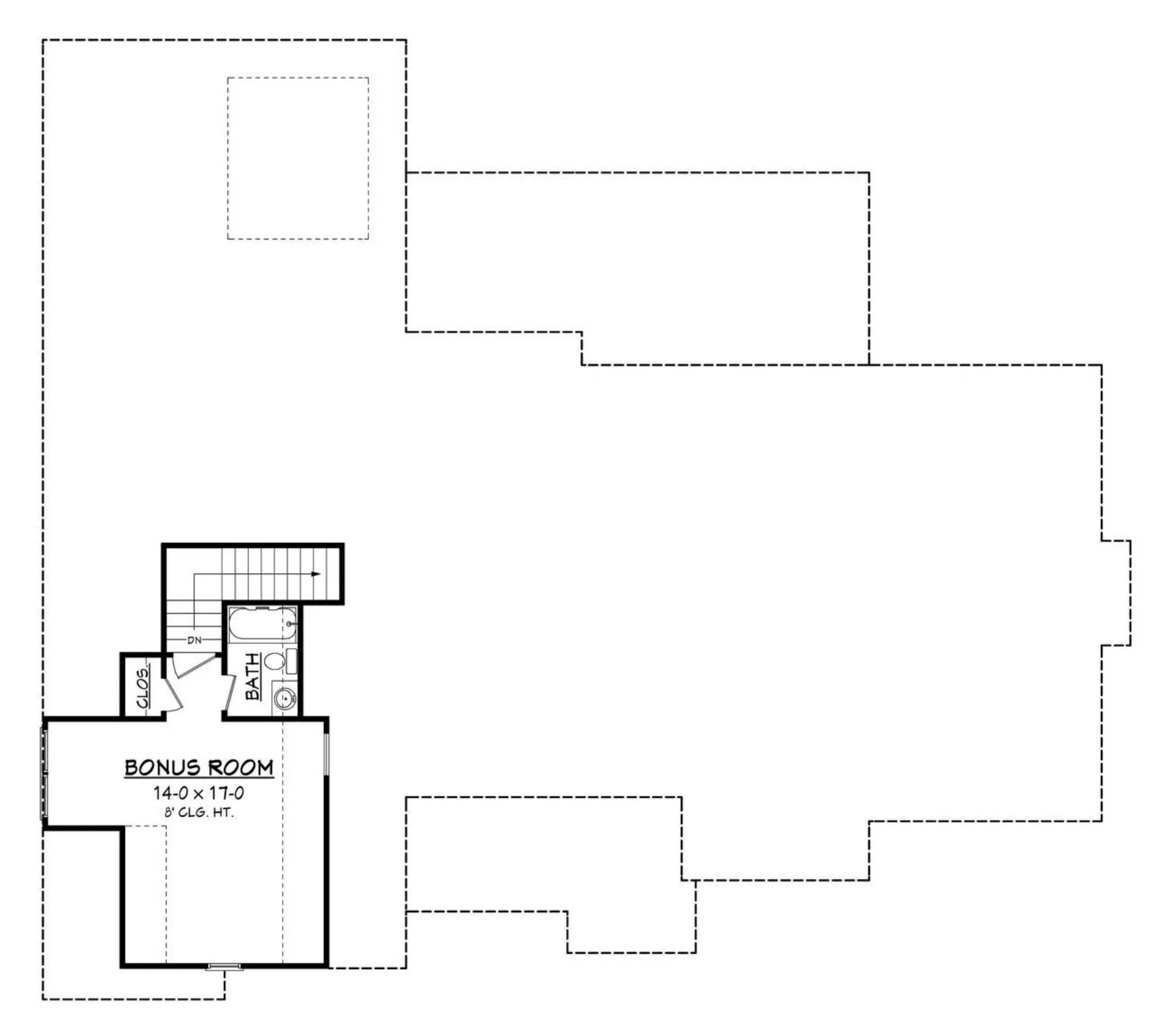
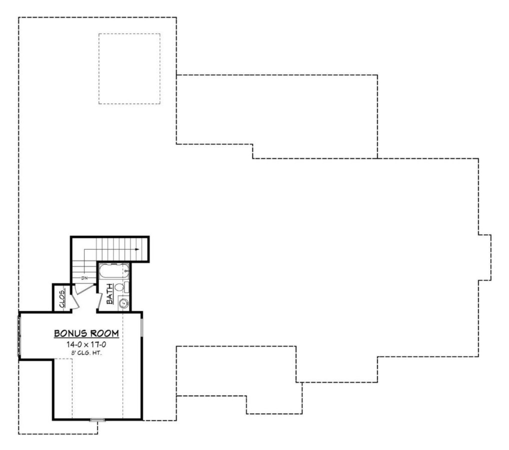
Bonus & Flex Spaces
This plan includes a bonus room above the garage that can serve as a guest suite, media room, or home office. A spacious mudroom with built-ins connects the garage to the interior for everyday organization.
Architectural Detailing & Materials
- Exterior: Brick, board and batten, fiber cement siding, and timber trusses.
- Roof: Steep-pitched gables emphasizing Craftsman form.
- Windows: Symmetrical layout enhancing balance and natural light.
Design Philosophy
This plan embraces Traditional Craftsman architecture while incorporating modern farmhouse warmth. The combination of tactile materials and open layouts celebrates the Craftsman movement’s architectural heritage—emphasizing handcrafted quality and connection to nature.
Key Features
- Open-concept living, dining, and kitchen flow.
- Vaulted great room with central fireplace.
- Primary suite on main level with walk-in closet.
- Bonus room for office or guest suite.
- 2-car attached garage with side entry.
- Covered front and back porches.
Included with Every Plan
- CAD + PDF files included with purchase.
- Unlimited Build License for full construction flexibility.
- Structural Engineering Included for code compliance.
- Free Foundation Change (slab, crawlspace, or basement).
- Fast Modifications with expert design assistance.
Why You’ll Love This Home Plan
Every square foot of this Craftsman Farmhouse is thoughtfully designed for comfort and connection. From the welcoming porch to the airy great room, it invites gatherings, laughter, and the peaceful rhythm of daily life.
Frequently Asked Questions
Can I customize this plan? Yes, all plans include editable CAD files for easy customization.
Does this include engineering? Yes, all plans come stamped with structural engineering where applicable.
What makes this design unique? The brick and board-and-batten blend adds timeless character to a modern open plan with flexible spaces.
Start Building Your Dream Home
Take the next step toward your dream home today. Explore more in our Craftsman Farmhouse collection or support@myhomefloorplans.com for personalized assistance.
Design your forever home with lasting quality and character—start building your Craftsman Farmhouse today.
Plan 20-1989 – The Taylor Manor | Craftsman Farmhouse – 4-Bed, 3-Bath, 2,750 SF
- BOTH a PDF and CAD file (sent to the email provided/a copy of the downloadable files will be in your account here)
- PDF – Easily printable at any local print shop
- CAD Files – Delivered in AutoCAD format. Required for structural engineering and very helpful for modifications.
- Structural Engineering – Included with every plan unless not shown in the product images. Very helpful and reduces engineering time dramatically for any state. *All plans must be approved by engineer licensed in state of build*
Disclaimer
Verify dimensions, square footage, and description against product images before purchase. Currently, most attributes were extracted with AI and have not been manually reviewed.
My Home Floor Plans, Inc. does not assume liability for any deviations in the plans. All information must be confirmed by your contractor prior to construction. Dimensions govern over scale.


