8-1446 HOUSE Plan – Rustic Craftsman Cottage House Plan – 5 Bedrooms, 5 Baths, 4,587 Sq Ft
Discover this 4,587 sq. ft. Rustic Craftsman cottage plan with 5 bedrooms, vaulted ceilings, open floor plan, wine cellar, and 3-car garage. Includes CAD blueprints and unlimited build license.
Gorgeous Rustic Craftsman 2.5-Story House Plan with 5 Bedrooms
Explore this 4,587 sq. ft. luxury house plan featuring CAD blueprints, open floor layout, vaulted ceilings, and a spacious 3-car garage—ideal for upscale modern living.
This luxury house plan offers a perfect mix of comfort and functionality. Designed for modern living, it delivers timeless charm and smart space planning.
Key Features of the Home Plan
Living Areas – Heated & Unheated
- Heated area: 4,587 sq. ft. over two and a half stories.
- Unheated extras: Covered front and rear porches, patio, terrace, and a 3-car garage.
Bedrooms & Bathrooms
- 5 total bedrooms, including a spacious first-floor Owner Suite with walk-in closet and ensuite bath.
- 5+ bathrooms, thoughtfully positioned for convenience and privacy.
Interior Highlights
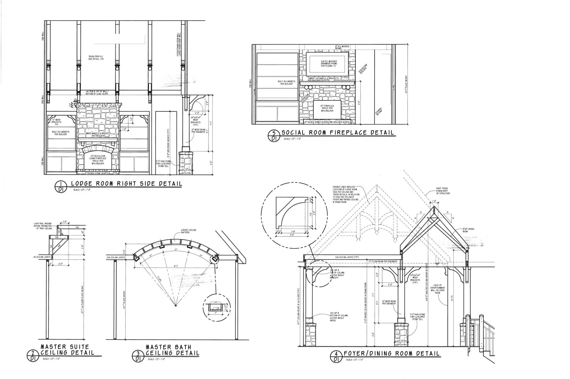
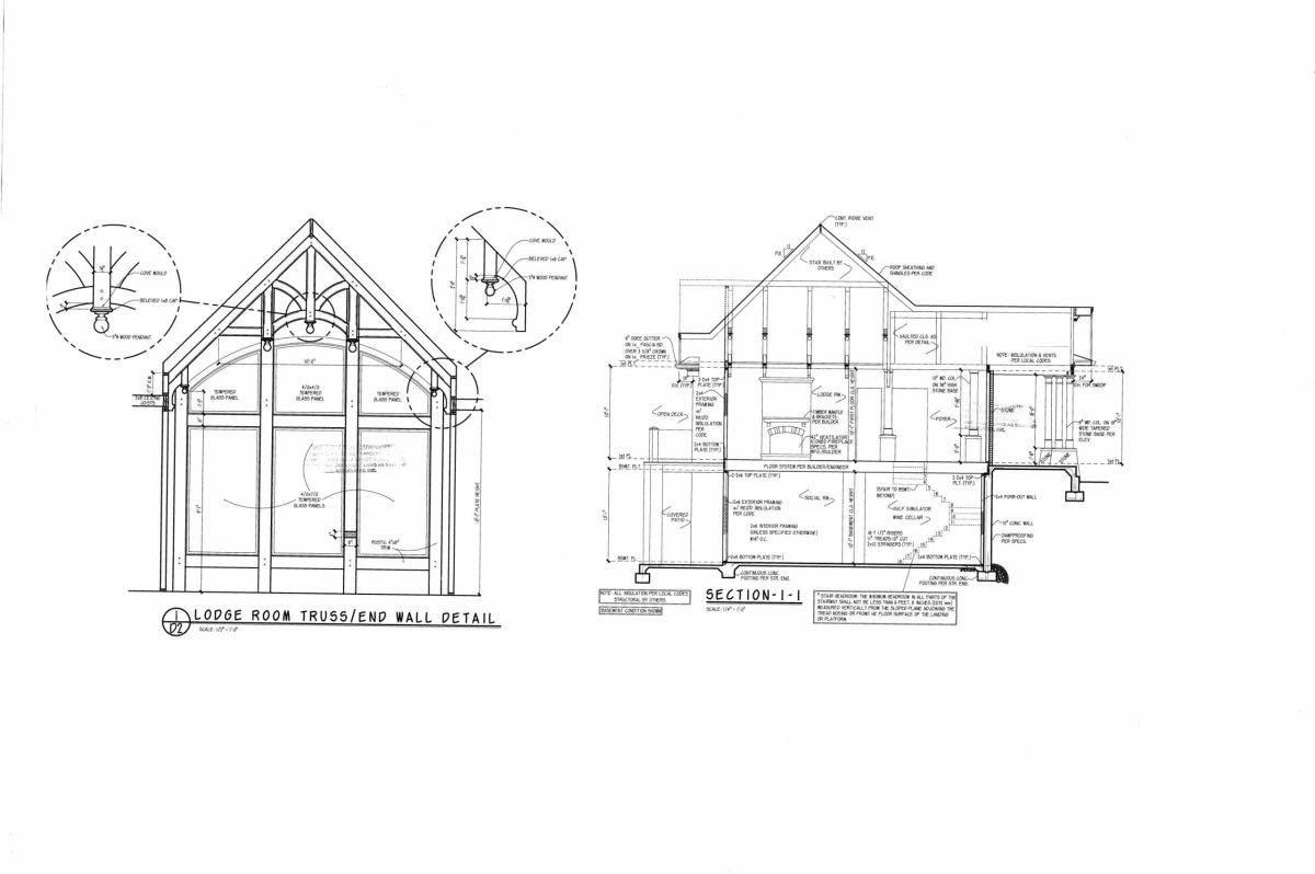
- Vaulted ceilings create an airy and luxurious atmosphere.
- Open floor plan connects the great room, kitchen, and dining. View open layouts.
- Gourmet kitchen with island, breakfast nook, and walk-in pantry.
- Recreational room and wine cellar offer upscale touches for entertaining or relaxing.
Outdoor Living Features
- Covered front porch and rear porch for shaded enjoyment and curb appeal.
- Spacious patio and terrace for relaxing evenings or outdoor gatherings.
- Rustic Craftsman-style exterior with shake, shingles, and stone for timeless beauty.
Architectural Style: Rustic Luxury Craftsman
This design blends timeless materials and thoughtful details—perfect for families who value elegance, character, and functionality all in one package.
Included Benefits with Every Plan
- CAD + PDF Files: Easily editable, printable, and ready to build.
- Unlimited Build License: Build once—or 100 times—with no extra fees.
- Free Foundation Changes: Swap between slab, crawlspace, or basement.
- Structural Engineering Included: Code-compliant and professionally stamped.
- Lower Modification Costs: Up to 50% less than competitors.
- View Before You Buy: See every sheet in advance.
Similar Collections You Might Love
- 5-Bedroom House Plans
- Plans with First Floor Owner Suites
- Walk-In Pantry House Plans
- Covered Back Porch House Plans
- House Plans with Large Garage
Frequently Asked Questions
What’s included with this house plan? All plans come with editable CAD files, printable PDFs, unlimited-build rights, structural engineering, and free foundation changes.
Can I customize the layout? Yes! We offer fast and affordable modifications. Get a quote here.
Is this design suitable for large families? Absolutely. With 5 bedrooms and ample living space, it’s ideal for growing or multi-generational households.
Does this include garage plans? Yes, it includes a spacious 3-car garage with additional storage options.
Can I preview the full set of plans? Yes. Preview every sheet before you buy.
Learn More About the Luxury Craftsman Style
Explore the history and design of this architectural favorite in detail with this guide from ArchDaily.
Start Building Your Dream Home Today
Have questions or want to personalize your plan? Contact our expert team at support@myhomefloorplans.com or fill out our form.
Your future house starts with a great plan—customize it and build with confidence!
Original price was: $3,370.56.$1,754.99Current price is: $1,754.99.
999 in stock
* Please verify all details with the actual plan, as the plan takes precedence over the information shown below.
| Architectural Styles | |
|---|---|
| Width | 91' 0" |
| Depth | 71' 0" |
| Htd SF | |
| Unhtd SF | |
| Bedrooms | |
| Bathrooms | |
| # of Floors | |
| # Garage Bays | |
| Indoor Features | Attic, Basement, Fireplace, Foyer, Great Room, Living Room, Mudroom, Open Floor Plan, Recreational Room |
| Outdoor Features | Covered Front Porch, Covered Deck, Covered Rear Porch, Patio, Terrace |
| Bed and Bath Features | Bedrooms on First Floor, Bedrooms on Second Floor, Owner's Suite on First Floor, Walk-in Closet |
| Kitchen Features | |
| Garage Features | |
| Ceiling Features | |
| Structure Type | |
| Exterior Material |
Evelyn Gonzalez – April 19, 2024
Family members preview on tablets!
Attics | Basement Garage | Beamed | Bedrooms on First and Second Floors | Breakfast Nook | Cottage | Covered Deck | Covered Front Porch | Covered Patio | Covered Rear Porches | Craftsman | Designer Favorite | Fireplaces | Foyer | Great Room | Home Plans with Mudrooms | Kitchen Island | Large House Plans | Living Room | Open Floor Plan Designs | Oversized Designs | Owner’s Suite on the First Floor | Recreational Room | Rustic Craftsman | Second Floor Bedroom | Side Entry Garage | Sloped Lot | Terrace | Vaulted Ceiling | Walk-in Closet | Walk-in Pantry
8-1446 HOUSE Plan – Rustic Craftsman Cottage House Plan – 5 Bedrooms, 5 Baths, 4,587 Sq Ft
- BOTH a PDF and CAD file (sent to the email provided/a copy of the downloadable files will be in your account here)
- PDF – Easily printable at any local print shop
- CAD Files – Delivered in AutoCAD format. Required for structural engineering and very helpful for modifications.
- Structural Engineering – Included with every plan unless not shown in the product images. Very helpful and reduces engineering time dramatically for any state. *All plans must be approved by engineer licensed in state of build*
Disclaimer
Verify dimensions, square footage, and description against product images before purchase. Currently, most attributes were extracted with AI and have not been manually reviewed.
My Home Floor Plans, Inc. does not assume liability for any deviations in the plans. All information must be confirmed by your contractor prior to construction. Dimensions govern over scale.




























