14-1346 HOUSE PLAN – Modern Craftsman House Plan with Fireplace, 4 Bedrooms & Bonus
Explore this Modern Craftsman house plan featuring 4 bedrooms, vaulted ceilings, a fireplace, bonus room, and CAD blueprints designed for builders and architects.
Modern Craftsman Home Plan with Fireplace, 4 Bedrooms & Bonus Room
Explore this stunning Modern Craftsman house plan featuring 3,446 heated sq. ft., vaulted ceilings, open floor layout, and CAD blueprints included.
This Modern Craftsman house plan offers a perfect mix of cozy charm and modern utility. Designed for flexible living, it features smart space planning, bold architectural lines, and premium indoor-outdoor functionality.
Key Features of the Home Plan
Living Areas – Heated & Unheated
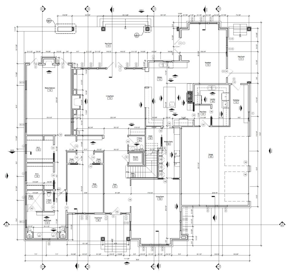
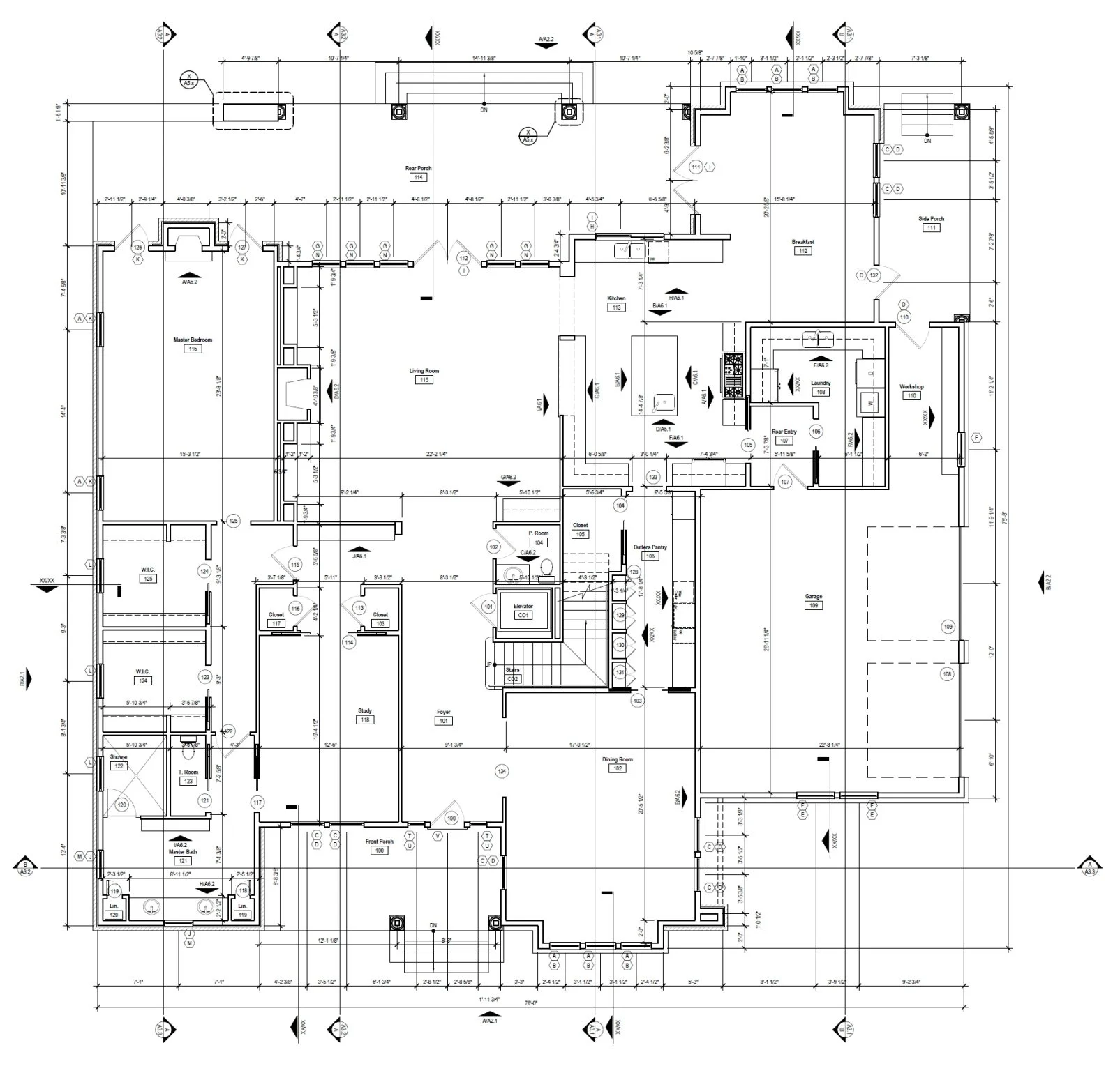
- Heated area: 3,446 sq. ft. across 1.5 stories for generous living.
- Unheated extras: Covered porches, basement options, and garage with workshop space.
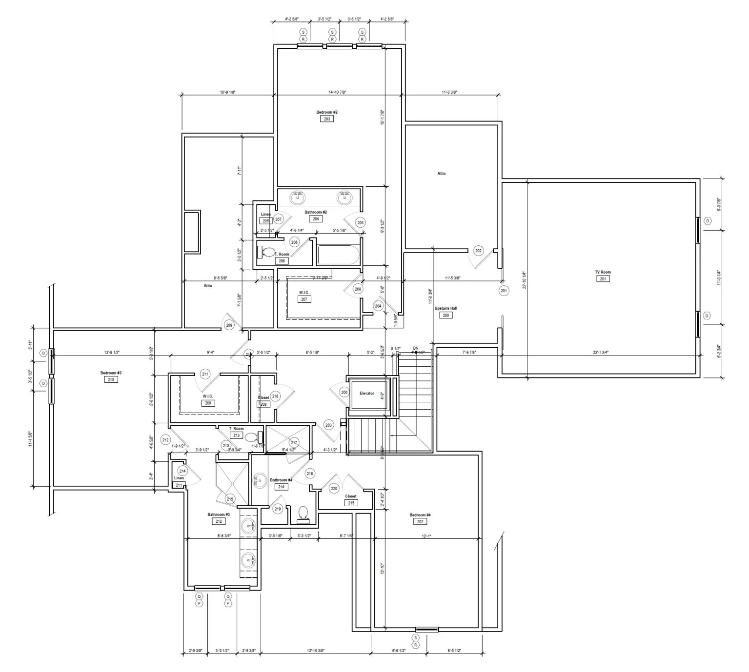
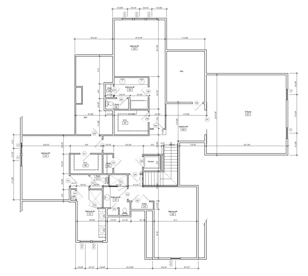
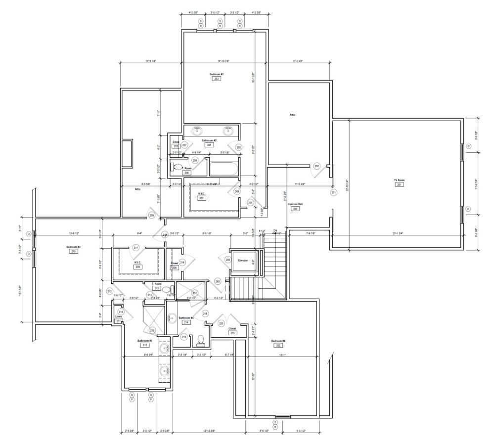
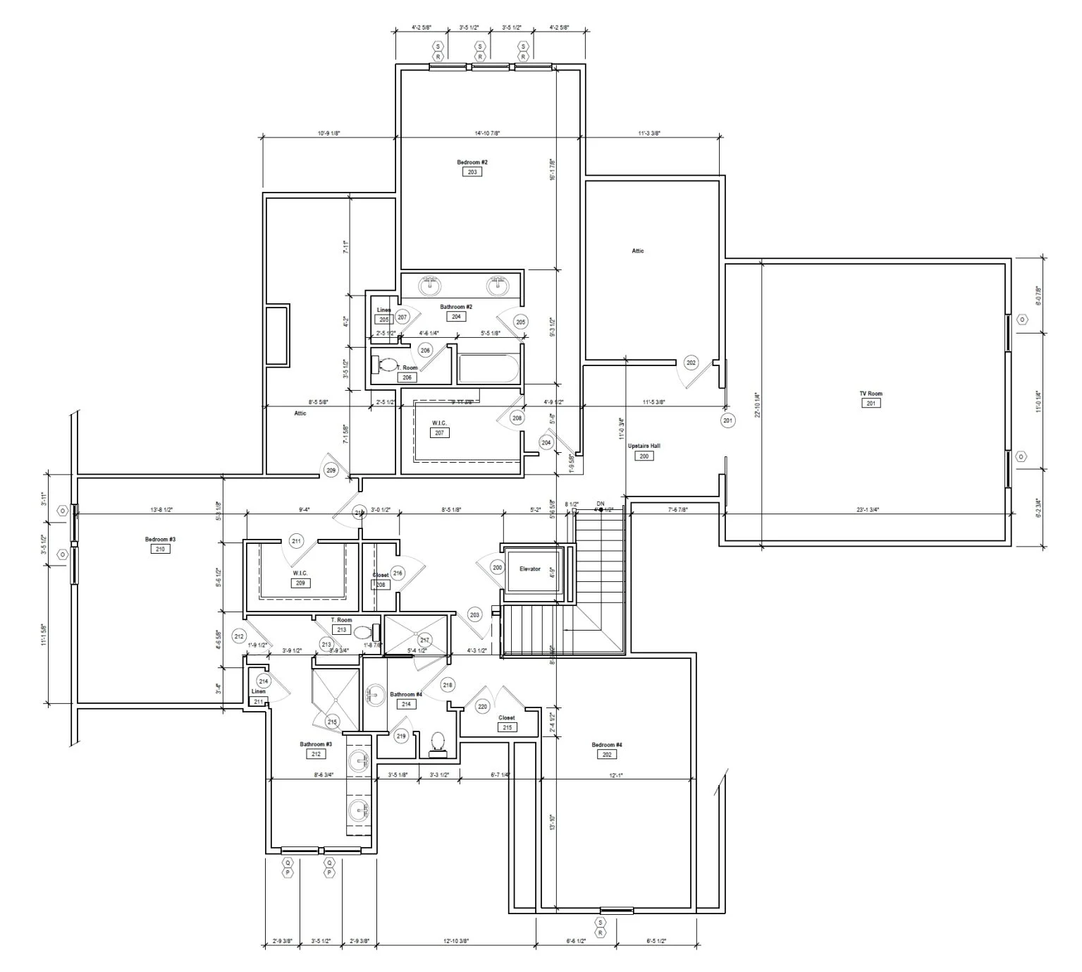
Bedrooms & Bathrooms
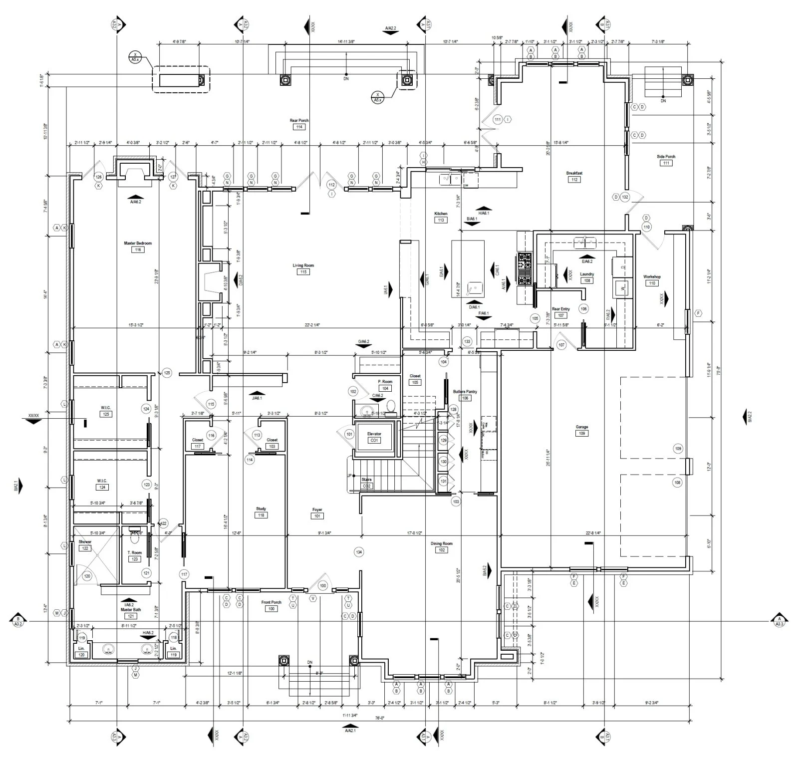
- 4 total bedrooms, including a luxurious first-floor Owner Suite with a walk-in closet.
- 3 full bathrooms, including a Jack and Jill setup upstairs for added privacy.
Interior Highlights
- Vaulted ceilings in the great room amplify light and space.
- Open floor plan connects kitchen, dining, and living areas. Explore open layouts.
- Kitchen island and walk-in pantry for everyday function and entertaining.
- Fireplace in the great room adds a warm, rustic focal point. View fireplace homes.
- Dedicated study/office space ideal for remote work.
- Versatile bonus room upstairs for a playroom, media center, or guest suite.
Garage & Storage Details
- Garage Bays: Spacious 2-car garage with optional workshop area.
- Garage Type: Side-entry for improved curb appeal and function.
- Storage: Walk-in closets, pantry, and optional basement for additional storage.
Outdoor Living Features
- Covered front and rear porches offer year-round outdoor enjoyment. View covered porch designs.
- Stone, shake, and lap siding elevate the classic Craftsman curb appeal.
Architectural Style: Modern Craftsman
This design blends timeless materials like natural stone and wood siding with bold rooflines and elegant detailing—perfect for families who want the rustic warmth of a Craftsman-style house with modern comfort. Learn more about the Craftsman style’s architectural roots.
Bonus Features
- Optional basement for sloped lot adaptability or future expansion.
- Large bonus room over garage for added flex space.
- Study/home office adds productivity to your plan.
Included Benefits with Every Plan
- CAD + PDF Files: Easily editable, printable, and ready for construction.
- Unlimited Build License: Build once—or multiple times—at no extra cost.
- Free Foundation Changes: Customize between slab, crawlspace, or basement. Learn about foundation options.
- Structural Engineering Included: Professionally stamped plans meet code.
- Lower Modification Costs: Up to 50% cheaper than competitors. Customize affordably.
- View Before You Buy: Preview every sheet upfront.
Similar Collections You Might Love
- Traditional Craftsman House Plans
- House Plans with Bonus Room
- Owner Suite on Main Floor Plans
- Plans with Walk-In Pantry
- Covered Porch Home Plans
Frequently Asked Questions
What’s included in the purchase? You’ll receive editable CAD files, printable PDFs, unlimited-build rights, structural engineering stamps, and free foundation changes.
Is this plan customizable? Yes! All of our plans can be modified to suit your needs. Request a quote here.
Is this layout family-friendly? Absolutely. The first-floor Owner Suite and upstairs Jack and Jill bedrooms provide privacy and convenience.
Can I preview the entire set of drawings? Yes—you can view all sheets before you buy.
Does it work for sloped lots? Yes, the foundation is adaptable for crawlspace or basement, making it perfect for uneven terrain.
Start Building Your Dream Home Today
Have questions or need help personalizing this layout? Reach out to our expert team at support@myhomefloorplans.com or fill out our contact form.
Your dream home starts with a better plan—get started today and build with confidence!
Original price was: $2,870.56.$1,454.99Current price is: $1,454.99.
999 in stock
* Please verify all details with the actual plan, as the plan takes precedence over the information shown below.
| Width | 76'-10" |
|---|---|
| Depth | 76'-6" |
| Htd SF | |
| Unhtd SF | |
| Bedrooms | |
| Bathrooms | |
| # of Floors | |
| # Garage Bays | |
| Architectural Styles | |
| Indoor Features | Attic, Basement, Bonus Room, Downstairs Laundry Room, Elevator, Fireplace, Foyer, Great Room, Living Room, Office/Study |
| Outdoor Features | |
| Bed and Bath Features | Bedrooms on First Floor, Jack and Jill Bathroom, Owner's Suite on First Floor, Walk-in Closet |
| Kitchen Features | |
| Garage Features | |
| Ceiling Features | |
| Structure Type | |
| Exterior Material |
No reviews yet.
9 FT+ Ceilings | Attics | Basement Garage | Bedrooms on First and Second Floors | Bonus Rooms | Covered Front Porch | Covered Patio | Covered Rear Porches | Craftsman | Designer Favorite | Downstairs Laundry Room | Elevator | Fireplaces | Foyer | Great Room | Jack and Jill | Kitchen Island | Large House Plans | Living Room | Modern Craftsman Designs | Office/Study Designs | Owner’s Suite on the First Floor | Side Entry Garage | Sloped Lot | Traditional Craftsman | Vaulted Ceiling | Walk-in Closet | Walk-in Pantry | Workshop
14-1346 HOUSE PLAN – Modern Craftsman House Plan with Fireplace, 4 Bedrooms & Bonus
- BOTH a PDF and CAD file (sent to the email provided/a copy of the downloadable files will be in your account here)
- PDF – Easily printable at any local print shop
- CAD Files – Delivered in AutoCAD format. Required for structural engineering and very helpful for modifications.
- Structural Engineering – Included with every plan unless not shown in the product images. Very helpful and reduces engineering time dramatically for any state. *All plans must be approved by engineer licensed in state of build*
Disclaimer
Verify dimensions, square footage, and description against product images before purchase. Currently, most attributes were extracted with AI and have not been manually reviewed.
My Home Floor Plans, Inc. does not assume liability for any deviations in the plans. All information must be confirmed by your contractor prior to construction. Dimensions govern over scale.














