7-2367 HOUSE PLAN – Stunning French Country House Plan with 1.5 Stories & CAD Designs
Explore a French Country house plan with 1.5 stories, 4 bedrooms, 3 garage bays, and coffered ceilings. Includes CAD designs, blueprints, and architectural layouts.
Stunning French Country House Plan with 1.5 Stories and Elegant Blueprint Layout
Explore this French Country house plan featuring 4,500 heated sq. ft., 1.5 stories, coffered ceilings, 4 bedrooms, and 3 garage bays—includes CAD files, blueprints, and full architectural designs.
This French Country house plan offers timeless curb appeal and a smartly arranged layout ideal for families and entertainers alike. Its refined charm meets functional living with features like coffered ceilings, a walk-in pantry, and both front and rear outdoor living areas.
Key Features of the Home Plan
Living Areas – Heated & Unheated
- Heated area: 4,500 sq. ft. across 1.5 stories.
- Unheated extras: Covered porch, balcony, rear patio, and oversized garage bays.
Bedrooms & Bathrooms
- 4 spacious bedrooms including a luxurious Owner Suite with a private bath and ample closet space.
- 3 full bathrooms designed for convenience and comfort.
Interior Highlights
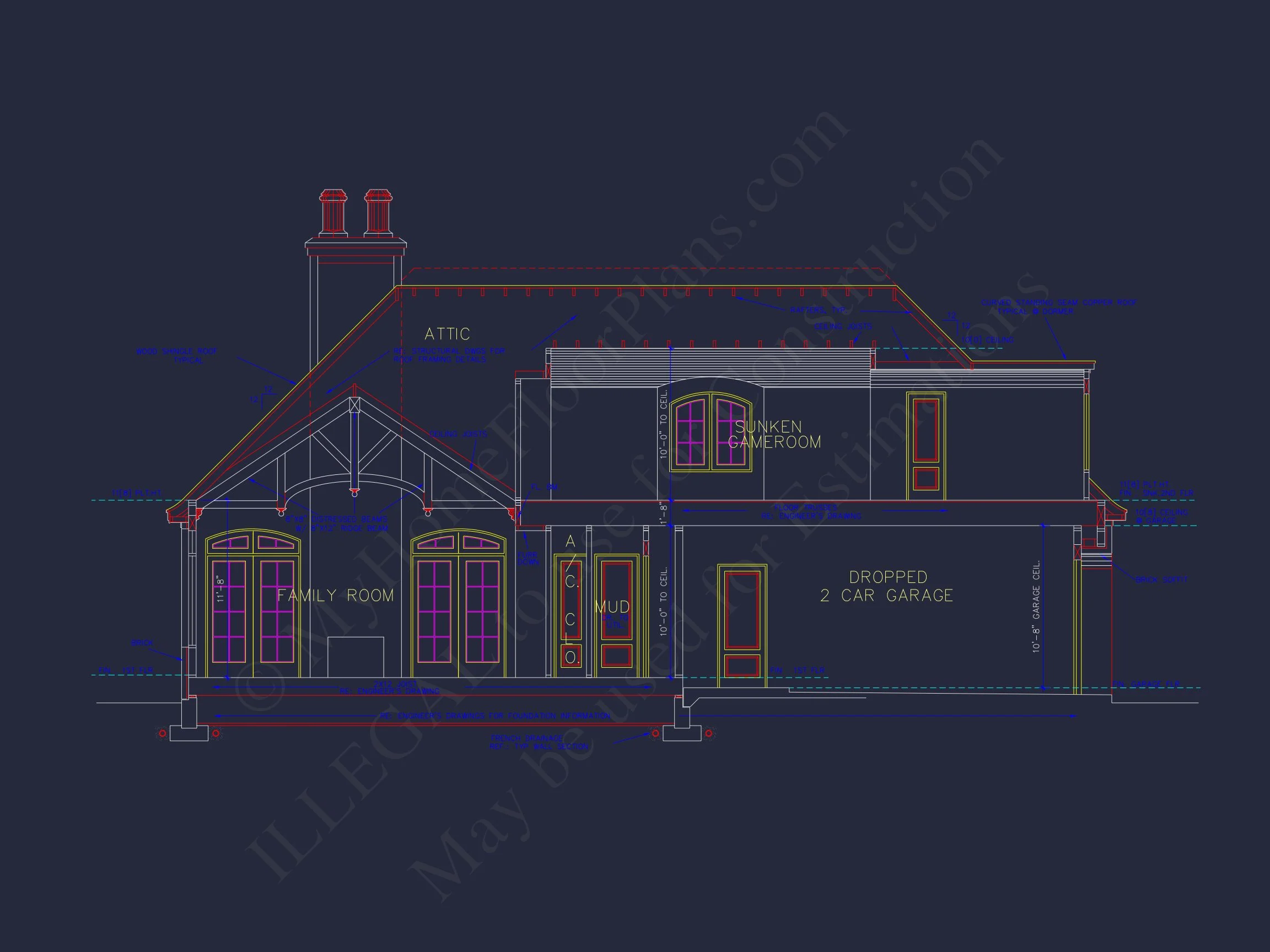
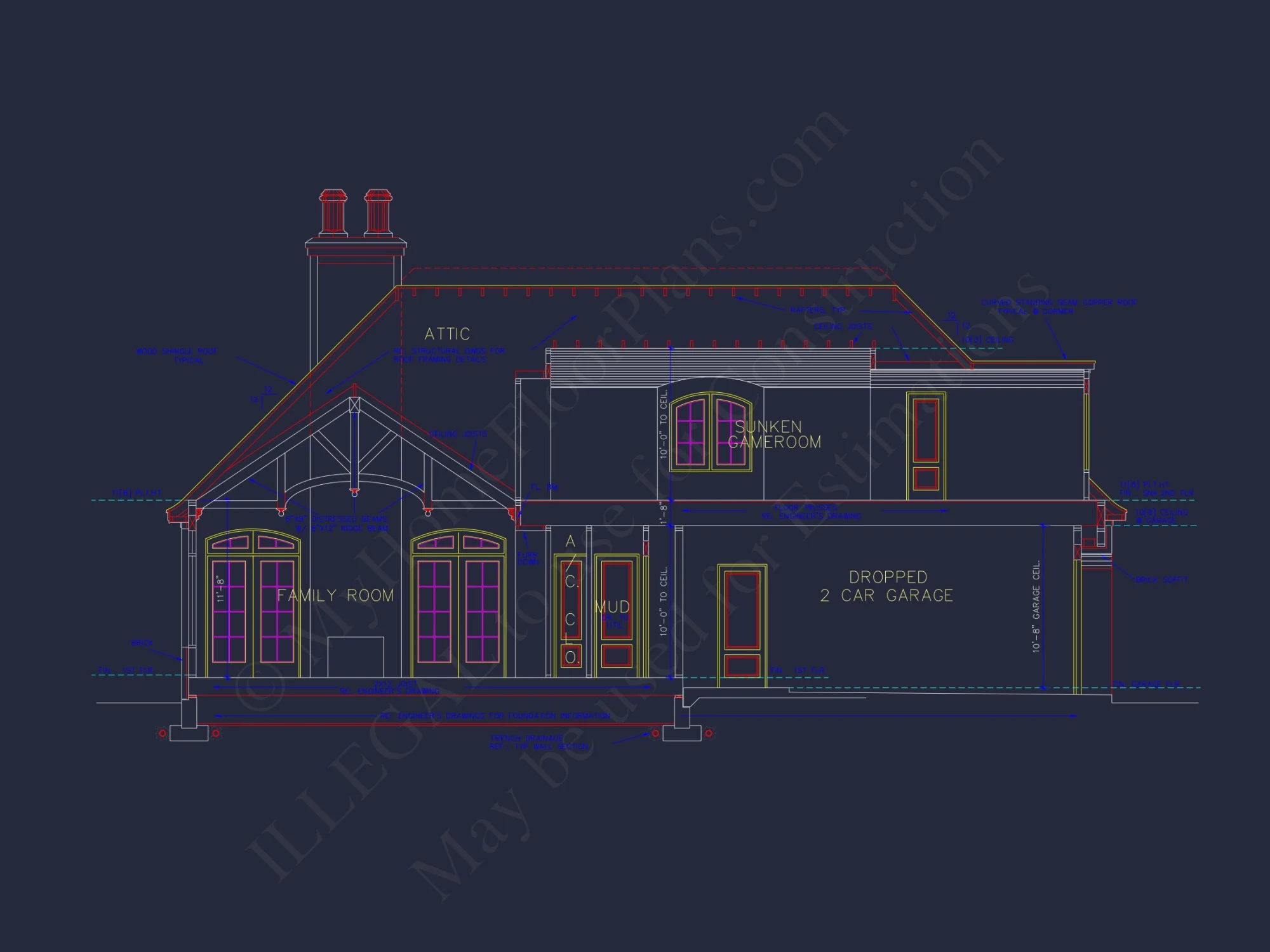
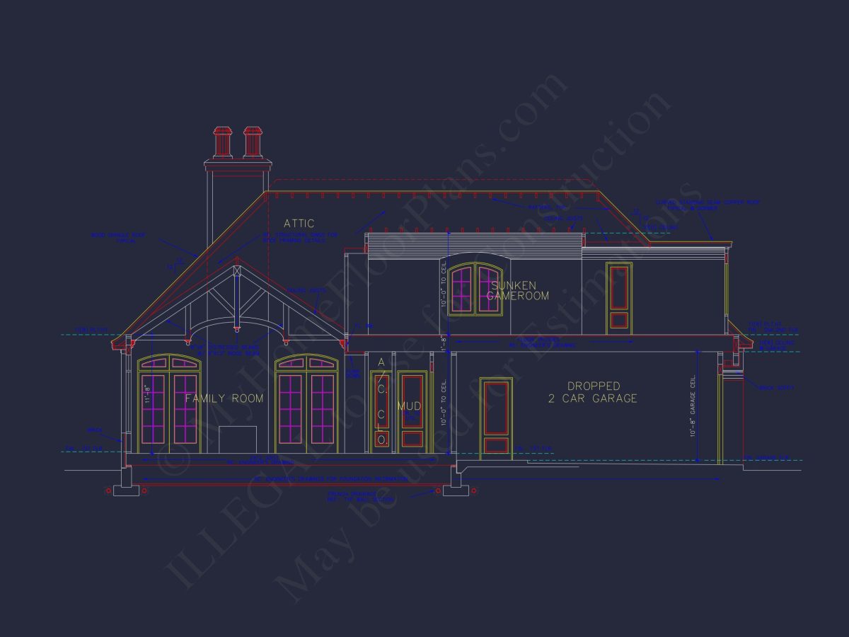
- Coffered ceilings in the great room create an elegant visual focal point.
- Open floor plan seamlessly connects the living, dining, and kitchen areas. Explore open layouts.
- Kitchen island with abundant prep space and a large walk-in pantry for storage.
- Fireplace in the living area adds warmth and character. See fireplace plans.
- Bonus room ideal for a media room, hobby space, or additional guest suite.
- Office/study offers privacy for work-from-home or quiet reading time.
Garage & Storage Details
- Garage Bays: 3-car oversized garage.
- Garage Type: Front-entry and side-entry combo for flexible access.
- Storage: Additional space for tools, bikes, or workshop use.
Outdoor Living Features
- Covered front porch and rear patio—perfect for shaded relaxation and entertaining.
- Private balcony for enjoying views or reading outdoors.
- Brick and stone exterior for classic French Country charm.
Architectural Style: French Country
This home embodies the French Country aesthetic with elegant rooflines, timeless stonework, and a balance of old-world charm and modern comfort. Learn more about the French Country style or explore its European roots on ArchDaily.
Bonus Features
- Flexible bonus room for gym, playroom, or guest quarters.
- Elegant foyer and dedicated mudroom entry for practical living.
- Space for custom landscaping around porch and patio areas.
Included Benefits with Every Plan
- CAD + PDF Files: Fully editable and printable for your builder’s needs.
- Unlimited Build License: Build multiple homes without paying again.
- Free Foundation Changes: Switch between crawlspace, slab, or basement.
- Structural Engineering Included: Designed for safety and local code compliance.
- Lower Modification Costs: Save up to 50% compared to other plan sites.
- View Before You Buy: Preview all blueprints first.
Similar Collections You Might Love
- Traditional House Plans
- Plans with Main Level Owner Suites
- House Plans with Bonus Rooms
- Covered Back Porch House Plans
- Plans with Kitchen Islands
Frequently Asked Questions
What makes this French Country plan unique? This plan blends old-world charm with modern luxuries like open layouts, bonus rooms, and structural engineering included.
Are modifications available? Yes—custom changes can be made quickly and affordably. Request a custom quote.
Is this plan suitable for large families? Absolutely. With 4 bedrooms, multiple living spaces, and a bonus room, it’s perfect for large or multi-generational households.
Can I build it on a crawlspace or slab? Yes. This plan supports crawlspace or slab foundations—and you can change it at no cost.
How do I see the entire blueprint set? Just view all sheets before buying to make sure it’s perfect for your needs.
Start Building Your Dream Home Today
Have questions or want to personalize your plan? Contact our expert team at support@myhomefloorplans.com or fill out our contact form.
Design confidently with a plan that’s elegant, functional, and tailored for your dream lifestyle.
Original price was: $3,370.56.$1,754.99Current price is: $1,754.99.
999 in stock
* Please verify all details with the actual plan, as the plan takes precedence over the information shown below.
| Width | 115'-5" |
|---|---|
| Depth | 75'-0" |
| Htd SF | |
| Unhtd SF | |
| Bedrooms | |
| Bathrooms | |
| # of Floors | |
| # Garage Bays | |
| Architectural Styles | |
| Indoor Features | Bonus Room, Downstairs Laundry Room, Fireplace, Foyer, Great Room, Living Room, Office/Study |
| Outdoor Features | |
| Bed and Bath Features | Bedrooms on First Floor, Owner's Suite on First Floor, Walk-in Closet |
| Kitchen Features | |
| Garage Features | |
| Condition | New |
| Ceiling Features | |
| Structure Type | |
| Exterior Material |
No reviews yet.
10 FT+ Ceilings | Affordable | Balconies | Bedrooms on First and Second Floors | Bonus Rooms | Butler’s Pantry | Butler’s Pantry | Coffered | Covered Front Porch | Covered Patio | Designer Favorite | Downstairs Laundry Room | Fireplaces | Fireplaces | First-Floor Bedrooms | Foyer | French Traditional Farmhouse | Front Entry | Great Room | Kitchen Island | Large House Plans | Living Room | Office/Study Designs | Oversized Designs | Owner’s Suite on the First Floor | Patios | Side Entry Garage | Traditional | Walk-in Closet | Walk-in Pantry
7-2367 HOUSE PLAN – Stunning French Country House Plan with 1.5 Stories & CAD Designs
- BOTH a PDF and CAD file (sent to the email provided/a copy of the downloadable files will be in your account here)
- PDF – Easily printable at any local print shop
- CAD Files – Delivered in AutoCAD format. Required for structural engineering and very helpful for modifications.
- Structural Engineering – Included with every plan unless not shown in the product images. Very helpful and reduces engineering time dramatically for any state. *All plans must be approved by engineer licensed in state of build*
Disclaimer
Verify dimensions, square footage, and description against product images before purchase. Currently, most attributes were extracted with AI and have not been manually reviewed.
My Home Floor Plans, Inc. does not assume liability for any deviations in the plans. All information must be confirmed by your contractor prior to construction. Dimensions govern over scale.





























