13-DEBRA HOUSE PLAN – Luxury House Floor Plan with CAD Blueprints & Modern Design
Experience a spacious French Country luxury house with 5 bedrooms, 5.5 baths, CAD blueprints, and unique designs. Includes open floor plan and great features.
Luxury 2-Story French Country House Plan with CAD Blueprints
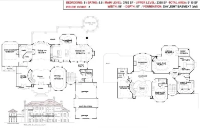
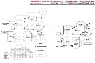
Experience this 6,110 sq. ft. luxury French Country house with 5 bedrooms, 5.5 baths, open-concept layout, and stunning CAD architecture—perfect for entertainers and families alike.
This luxury house plan offers the ideal blend of timeless elegance and modern functionality. Designed for upscale living, this plan features refined detailing, thoughtful space planning, and seamless indoor-outdoor flow.
Key Features of the Home Plan
Living Areas – Heated & Unheated
- Heated area: 6,110 sq. ft. across two beautifully designed floors.
- Unheated extras: Expansive covered patios, a daylight basement, garage bays, and wine storage areas.
Bedrooms & Bathrooms
- 5 luxurious bedrooms, including two Owner Suites for multigenerational flexibility.
- 5.5 bathrooms, all elegantly positioned for privacy and comfort, including spa-style ensuite amenities.
Interior Highlights
- Vaulted and tray ceilings amplify vertical space and create architectural drama.
- Open floor plan blends the kitchen, dining, and living areas. Explore open floor concepts.
- Chef’s kitchen with a large island, butler’s pantry, and sunny breakfast nook.
- Fireplace-centered great room for cozy, elegant gatherings. Browse fireplace home plans.
Garage & Storage Details
- Garage Bays: 3-car garage with integrated porte-cochere.
- Garage Type: Courtyard-load, ideal for privacy and curb appeal.
- Storage: Mudroom with built-in cubbies, bonus storage rooms, and walk-in closets in every suite.
Outdoor Living Features
- Covered rear terrace, screened porch, and outdoor entertainment zones for year-round relaxation.
- Stucco-clad exterior with Mediterranean detailing and French Country styling. See more French Country designs.
Architectural Style: French Country & Mediterranean
This design blends classic European materials with modern layout strategies—ideal for those who value refinement and flexibility. Discover similar plans in our Mediterranean collection, or explore French-inspired luxury through House Beautiful’s guide to French Country style.
Bonus Features
- Wine room for elegant entertaining and storage.
- Bonus room for flex use—home gym, study, or private theater.
- Daylight basement adds value and potential for expanded living or guest suite.
Included Benefits with Every Plan
- CAD + PDF Files: Editable blueprints ready for builders and architects.
- Unlimited Build License: Construct this house once or many times with no additional cost.
- Free Foundation Changes: Easily swap between basement, crawlspace, or slab. Learn more.
- Structural Engineering Included: Professionally stamped, compliant with national codes. Why this matters.
- Lower Modification Costs: Save up to 50% compared to competitors. Modify your plan.
- View Before You Buy: Preview all blueprint sheets.
Similar Collections You Might Love
- Luxury House Plans
- French Country House Plans
- House Plans with Main-Level Owner Suites
- House Plans with Covered Deck
- House Plans with Butler’s Pantry
Frequently Asked Questions
What is included with this luxury plan? You’ll receive CAD and PDF files, structural engineering, unlimited build rights, and free foundation changes.
Can I add a guest suite or home theater? Yes! This plan includes flexible bonus rooms and we offer fast, affordable customizations. Request a quote.
Does this design fit on a sloping lot? Definitely. The included daylight basement option is ideal for slopes.
Are the two Owner suites customizable? Absolutely. You can modify layout, finishes, and location to suit multigenerational needs.
Can I preview the full set of plans? Yes, every customer can view all sheets in advance before purchase.
Start Building Your Dream Home Today
Have questions or ready to make this luxury house your own? Contact our friendly design team at support@myhomefloorplans.com or submit a quick request.
Design boldly—this is your forever house. Begin your journey with our premium house blueprints today!
Original price was: $4,870.56.$2,754.22Current price is: $2,754.22.
999 in stock
* Please verify all details with the actual plan, as the plan takes precedence over the information shown below.
| Width | 96'-0" |
|---|---|
| Depth | 87-0" |
| Htd SF | |
| Bedrooms | |
| Bathrooms | |
| # of Floors | |
| # Garage Bays | |
| Architectural Styles | |
| Indoor Features | Basement, Bonus Room, Downstairs Laundry Room, Family Room, Fireplace, Foyer, Great Room, Large Laundry Room, Living Room, Mudroom, Office/Study, Open Floor Plan |
| Outdoor Features | Covered Front Porch, Balcony, Covered Deck, Covered Rear Porch, Patio, Screened Porch, Terrace |
| Bed and Bath Features | Owner's Suite on First Floor, Split Bedrooms, Two Owner's Suites, Walk-in Closet |
| Kitchen Features | Breakfast Nook, Butler's Pantry, Kitchen Island, Ultimate Kitchen, Walk-in Pantry |
| Condition | New |
| Garage Features | |
| Ceiling Features | |
| Structure Type | |
| Exterior Material |
Erica Turner – April 17, 2025
Pocket-door swaps take minutes!
My Home Floor Plans – November 5, 2025
#HousePlans #ModernHome #ArchitectureDesign #DreamHouse #FloorPlans #MyHomeFloorPlans
10 FT+ Ceilings | 9 FT+ Ceilings | Balconies | Basement Garage | Bonus Rooms | Breakfast Nook | Butler’s Pantry | Carport/Porte-cochère | Covered Deck | Covered Front Porch | Covered Patio | Covered Rear Porches | Downstairs Laundry Room | Family Room | Fireplaces | Foyer | French Traditional Farmhouse | Front Entry | Great Room | Home Plans with Mudrooms | Kitchen Island | Large Laundry Room | Living Room | Luxury | Mediterranean Designs | Office/Study Designs | Open Floor Plan Designs | Owner’s Suite on the First Floor | Screened Porches | Side Entry Garage | Sloped Lot | Split Bedroom | Terrace | Traditional | Tray Ceilings | Two Owner's Suites | Ultimate Kitchen | Vaulted Ceiling | Walk-in Closet | Walk-in Pantry
13-DEBRA HOUSE PLAN – Luxury House Floor Plan with CAD Blueprints & Modern Design
- BOTH a PDF and CAD file (sent to the email provided/a copy of the downloadable files will be in your account here)
- PDF – Easily printable at any local print shop
- CAD Files – Delivered in AutoCAD format. Required for structural engineering and very helpful for modifications.
- Structural Engineering – Included with every plan unless not shown in the product images. Very helpful and reduces engineering time dramatically for any state. *All plans must be approved by engineer licensed in state of build*
Disclaimer
Verify dimensions, square footage, and description against product images before purchase. Currently, most attributes were extracted with AI and have not been manually reviewed.
My Home Floor Plans, Inc. does not assume liability for any deviations in the plans. All information must be confirmed by your contractor prior to construction. Dimensions govern over scale.











