17-1559 HOUSE PLAN – Stunning House Plan Featuring 3, 565 Sqft, CAD Designs & Floor Plans
Explore this 3,565 sqft house plan with 4 baths, 3-4 beds, open floor designs, and a beautiful blueprint crafted for modern architecture and CAD designs.
Stunning 2-Story House Plan with 3,565 Sq. Ft. and Modern Craftsman Design
Explore this 3,565 sq. ft. house plan featuring 3–4 bedrooms, 4 bathrooms, an open layout, and CAD blueprints for flawless architectural execution.
This Craftsman-style house plan offers a perfect mix of comfort and functionality. Designed for modern living, it delivers timeless charm and smart space planning.
Key Features of the Home Plan
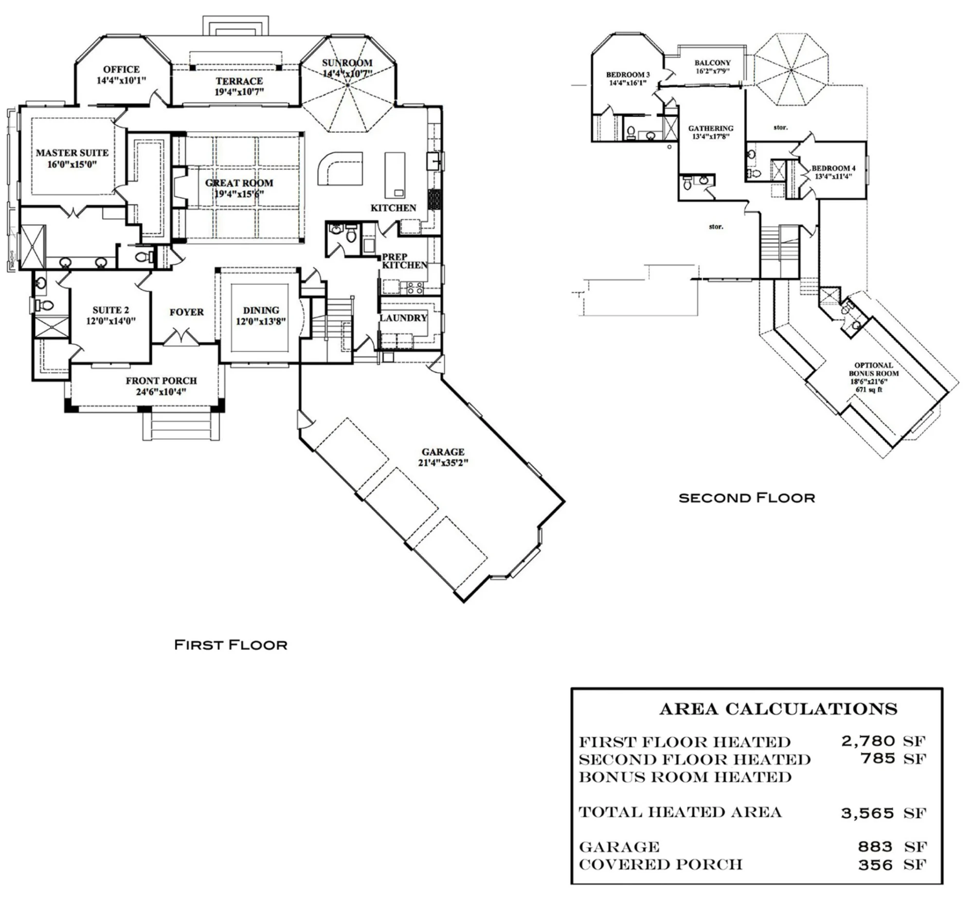
Living Areas – Heated & Unheated
- Heated area: 3,565 sq. ft. across two expansive stories.
- Unheated extras: Covered porch, rear terrace, balcony, and a spacious 3-car garage.
Bedrooms & Bathrooms
- 3–4 spacious bedrooms including dual Owner Suites with walk-in closets.
- 4 full bathrooms placed strategically for convenience and privacy.
Interior Highlights
- Vaulted ceilings in the great room add volume and elegance.
- Open floor plan seamlessly connects the kitchen, dining, and great room areas. View open layouts.
- Kitchen island with eating bar, plus a butler’s pantry and walk-in pantry for ample storage and style. See kitchen island plans.
- Fireplace enhances warmth and comfort in the great room. Browse fireplace plans.
- Dedicated office/study for remote work or quiet reading.
- Bonus room and upstairs laundry add flexibility and efficiency.
Garage & Storage Details
- Garage Bays: 3-car garage with side entry.
- Garage Type: Attached side-load garage for enhanced curb appeal.
- Storage: Includes a walk-in pantry, bonus closet space, and laundry room storage solutions.
Outdoor Living Features
- Covered front porch and rear terrace for relaxing or entertaining.
- Balcony off the upper level for scenic views and outdoor connection. See balcony plans.
- Craftsman-inspired exterior with stone accents and shake siding adds lasting curb appeal.
Architectural Style: Traditional Craftsman
This design blends timeless materials and thoughtful details—perfect for families who value character and efficiency in one package. Learn more about the Craftsman style or explore its roots on ArchDaily.
Bonus Features
- Flexible room count—easily configure a fourth bedroom or home gym.
- Breakfast nook for cozy family meals.
- Well-sized study or flex space for office, guest, or hobby use.
Included Benefits with Every Plan
- CAD + PDF Files: Easily editable, printable, and ready to build.
- Unlimited Build License: Build once—or 100 times—with no extra fees.
- Free Foundation Changes: Swap between slab, crawlspace, or basement.
- Structural Engineering Included: Code-compliant and professionally stamped.
- Lower Modification Costs: Up to 50% less than competitors.
- View Before You Buy: See every sheet in advance.
Similar Collections You Might Love
- Traditional Craftsman House Plans
- House Plans with Covered Back Porch
- Plans with Walk-In Pantry
- Plans with Main-Level Owner Suites
- Side-Load Garage House Plans
Frequently Asked Questions
What’s included with this house plan? All plans come with editable CAD files, printable PDFs, unlimited-build rights, structural engineering, and free foundation changes.
Can I customize the layout? Yes! We offer fast and affordable modifications. Get a quote here.
Is this suitable for large families? Absolutely. The dual Owner Suites and bonus room make it great for multigenerational living.
How many stories is this home? This plan features two spacious stories with open-concept living throughout.
Can I preview the blueprints? Yes. Preview every sheet before you buy.
Start Building Your Dream Home Today
Have questions or want to personalize your plan? Contact our expert team at support@myhomefloorplans.com or fill out our form.
Your future house starts with a great plan—customize it and build with confidence!
Original price was: $2,870.56.$1,454.99Current price is: $1,454.99.
999 in stock
* Please verify all details with the actual plan, as the plan takes precedence over the information shown below.
| Width | 86'-9" |
|---|---|
| Depth | 83'-7" |
| Htd SF | |
| Unhtd SF | |
| Bedrooms | |
| Bathrooms | |
| # of Floors | |
| # Garage Bays | |
| Architectural Styles | |
| Indoor Features | Bonus Room, Fireplace, Foyer, Great Room, Large Laundry Room, Living Room, Mudroom, Office/Study, Open Floor Plan, Recreational Room, Upstairs Laundry Room |
| Outdoor Features | |
| Bed and Bath Features | Bedrooms on First Floor, Bedrooms on Second Floor, Owner's Suite on First Floor, Two Owner's Suites, Walk-in Closet |
| Kitchen Features | Breakfast Nook, Butler's Pantry, Eating Bar, Kitchen Island, Walk-in Pantry |
| Garage Features | |
| Ceiling Features | |
| Structure Type | |
| Exterior Material |
No reviews yet.
9 FT+ Ceilings | Balconies | Beamed | Bedrooms on First and Second Floors | Bonus Rooms | Breakfast Nook | Builder Favorites | Butler’s Pantry | Butler’s Pantry | Covered Front Porch | Covered Rear Porches | Craftsman | Eating Bar | Fireplaces | Fireplaces | First-Floor Bedrooms | Foyer | Front Entry | Great Room | Home Plans with Mudrooms | Kitchen Island | Large House Plans | Large Laundry Room | Living Room | Office/Study Designs | Open Floor Plan Designs | Owner’s Suite on the First Floor | Recreational Room | Second Floor Bedroom | Side Entry Garage | Terrace | Traditional Craftsman | Two Owner's Suites | Upstairs Laundry Room | Vaulted Ceiling | Walk-in Closet | Walk-in Pantry
17-1559 HOUSE PLAN – Stunning House Plan Featuring 3, 565 Sqft, CAD Designs & Floor Plans
- BOTH a PDF and CAD file (sent to the email provided/a copy of the downloadable files will be in your account here)
- PDF – Easily printable at any local print shop
- CAD Files – Delivered in AutoCAD format. Required for structural engineering and very helpful for modifications.
- Structural Engineering – Included with every plan unless not shown in the product images. Very helpful and reduces engineering time dramatically for any state. *All plans must be approved by engineer licensed in state of build*
Disclaimer
Verify dimensions, square footage, and description against product images before purchase. Currently, most attributes were extracted with AI and have not been manually reviewed.
My Home Floor Plans, Inc. does not assume liability for any deviations in the plans. All information must be confirmed by your contractor prior to construction. Dimensions govern over scale.



















